Klassisches Krefelder Dreifensterhaus in top gepflegtem Zustand mit außergewöhnlichen Altbau-Details
Daten zur Immobilie
- Objekt-Nr.5326
- Ort47798 Krefeld
- ObjektartStadthaus
- Baujahr1903
- Grundstücksfläche214.00 m²
- Wohnfläche220.00 m²
- Kaufpreis 449.000,- €
Objektbeschreibung
Ein wirklich charmantes und gut gepflegtes, klassisches Krefelder Dreifensterhaus, Baujahr 1903, mit aktuell 4 Wohneinheiten als ideale Anlage-Immobilie in guter City-Lage!
Hier erwartet Sie eine Immobilie mit richtig viel Potenzial und verschiedenen Nutzungsmöglichkeiten: ob als Mehrparteienhaus für den Kapitalanleger mit guter Rendite, Mehr-Generationen-Wohnhaus für die große Familie oder teilweise Eigennutzung mit zusätzlichen Mieteinnahmen - hier ist auf einer Gesamtfläche von insgesamt ca. 220 m² einiges möglich!
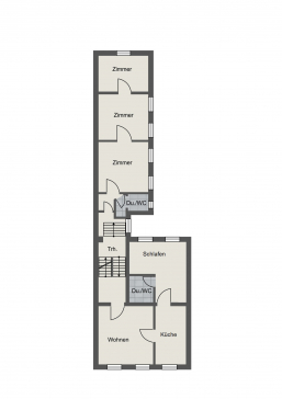
Die Aufteilung der beiden Wohnungen im Erd- und Obergeschoss entspricht den klassischen Krefelder Stadthäusern. Im vorderen Bereich 2 große Wohnräume mit hohen Decken und einem Durchgang oder Verbindungstür, die anderen Zimmer liegen im hinteren Flügelbereich. Das 1. OG hat einen Balkon, das Erdgeschoss hat über das im Flügelbereich liegende Schlafzimmer Zugang zur Terrasse mit moderner Terrassenüberdachung und dem wunderschön angelegten Stadt-Garten.
Alle Wohnungs-Eingangstüren und Innentüren sind in gutem Originalzustand, alte Kassetten-Türen und die entsprechenden Zargen unterstreichen den wunderbaren Altbaucharakter. Besonders einladend ist der Flur im Erdgeschoss - dieser überzeugt mit originalem Fliesenbelag und typischer Holztreppe. Die hohen Raumdecken verfügen überwiegend über alten Stuck, gerade in der Erdgeschosswohnung ein wirklich charmanter Hingucker!
Die Wohnungen teilen sich wie folgt auf:
- EG mit ca. 70 m², 2 Zimmer (wobei sich das große Schlafzimmer hinten zum Garten in zwei einzelne Zimmer teilen lassen könnte), Küche, Badezimmer sowie direktem Zugang zum wunderschön angelegten Innenhof.
- 1. OG mit ca. 75 m², 3 Zimmer, Badezimmer sowie kleinem Balkon zur Vorderseite.
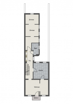
- 2. OG mit ca. 40 m², 2 Zimmer und Bad zur Straße
- 2. OG mit ca. 35 m², 2 Zimmer und Badezimmer.
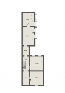
Im Dachgeschoss befinden sich jeweils ein Abstellraum für die einzelnen Wohneinheiten, sowie ein Trockenspeicher. Grundsätzlich besteht die Möglichkeit eines Dachausbaus.
Die Immobilie wurde von den derzeitigen Eigentümern über die Jahre stets hervorragend gepflegt. Eine vollständige Grund-Modernisierung gab es im Jahre 1998/1999. In diesem Zeitraum wurde die Heizung mit Wasser- und Stromleitungen sowie die Badezimmer saniert. Im Jahr 2000 erfolgte dann die Fassadensanierung und in 2005 die Sanierung des Daches. Ebenfalls wurden alle Fenster unter Berücksichtigung der historischen Optik durch Kunststofffenster ersetzt, teilweise mit Rollläden ausgestattet, im Erdgeschoss zur Straße in elektrischer Ausführung.
Die aktuelle Jahres-IST-Miete beträgt € 14.160,00,-. Die Erdgeschosswohnung wird zurzeit von den Eigentümern genutzt und ist bei der IST-Miete noch nicht berücksichtigt. Bei Mitvermietung der Erdgeschosswohnung wäre eine Jahres-SOLL-Miete von € 21.720,00 erzielbar.
Gerne erhalten Sie auf schriftliche Anfrage unser vollständiges Exposé mit Grundrissen, Flurkarte und einer Mietaufstellung. Wir freuen uns auf Ihre Anfrage!
Ausstattung
- 4-Parteienhaus mit schönen Grundrissen
- originale historische Wohnungsund Innentüren mit Kassettenfüllung
- klassisch-hohe Raumdecken mit tollen Stuckelementen
- elegantes Holz-Treppenhaus mit originalen Bodenfliesen
- Kunststoff-Fenster mit Doppelverglasung
- modernisierte Bäder
- wunderschön angelegter Garten mit moderner Terrassenüberdachung
- Gas-Etagenheizung
- Dach neu gedeckt in 2005
- sanierte Fassade
- Stromund Wasserleitungen erneuert
- uvm...
Grundrisse
Lage
Diese hochinteressante Altbau-Immobilie befindet sich in begehrter Wohnlage am Rande der Krefelder City. Die Wohnlage ist aufgrund der guten Verkehrsanbindung, Grünflächen sowie einer attraktiven Bebauung allzeit eine gute Adresse!
Genießen Sie die perfekte Zentralität, hervorragende Anbindungen ob mit PKW oder ÖPNV in alle Richtungen, beste Einkaufsmöglichkeiten in nächster Nähe uvm.
Eine nachhaltige Vermietbarkeit ist in dieser schönen Wohnlage zu jeder Zeit gegeben!
Sonstiges
Weitere interessante Angebote: WWW.KERSTING-IMMOBILIEN.DE
Sie möchten Ihre Immobilie jetzt oder später verkaufen bzw. vermieten? Dann nutzen Sie unsere über 36jährige Erfahrung in der Vermittlung von Immobilien!
Gerne bewerten wir kostenfrei auch Ihre Immobilie und erstellen Ihnen ganz unverbindlich ein individuelles Vermarktungskonzept.
Einfach anrufen, mailen oder ein Besuch in unserem Immobilienshop Uerdinger Str. 242 in Krefeld-Bockum. Wir sind gerne für Sie da!
Wir wurden 2024 erneut mehrfach ausgezeichnet:
BELLEVUE BEST PROPERTY AGENT 2024
IMMOBILIENSCOUT PREMIUMPARTNER 2024
FOCUS TOP IMMOBILIENMAKLER 2024
IMMOWELT BUSINESSPARTNER 2024
...und auch 2025 wieder:
BELLEVUE BEST PROPERTY AGENT 2025
IMMOBILIENSCOUT EXPERT 2025
FOCUS TOP IMMOBILIENMAKLER
IMMOWELT BUSINESSPARTNER
Energieausweis
- Ausweistyp: Bedarf
- Verbrauchskennwert: kWh/(m²*a)
- Endenergiebedarf: 133.70 kWh/(m²*a)
- Gültig bis: 2035-05-25
- Befeuerungsart: Gas
- Baujahr der Heizanlage: 1903
- Energiekennwert: E





























Der guten Ordnung halber möchten wir darauf aufmerksam machen, dass bei Abschluss eines notariellen Kaufvertrages, der durch unseren Nachweis und/oder Vermittlung zustande kommt, der Käufer an uns eine Maklerprovision in Höhe von 3,57% inkl. 19% MwSt. des Kaufpreises zu zahlen hat. Sämtliche Angaben erhielten wir vom Eigentümer. Bitte haben Sie Verständnis dafür, dass wir jede Haftung für die Richtigkeit der Angaben vollständig ausschließen. Außerdem möchten wir darauf hinweisen, dass im Exposé enthaltenes Bildmaterial aufgrund von Fotobearbeitungsprogrammen oder Einsatz von künstlicher Intelligenz von der Realität abweichen kann.