KR-Tiergartenviertel! Wunderschöne Einfamilien-Doppelhaushälfte mit Carport und Garage in Traumlage!
Daten zur Immobilie
- Objekt-Nr.5331
- Ort47799 Krefeld
- ObjektartDoppelhaushälfte
- Baujahr1995
- Grundstücksfläche380.00 m²
- Wohnfläche132.00 m²
- Kaufpreis Erfolgreich vermarktet!
Objektbeschreibung
Diese höchst attraktive Einfamilien-Doppelhaushälfte aus dem Jahre 1995 überzeugt durch ihre ruhige und zurückversetzte Lage in zweiter Reihe, gelegen im beliebten Krefelder Tiergartenviertel. Eingebettet in ein gepflegtes Wohnumfeld und mit Blick auf eine solide und wertbeständige Bausubstanz, präsentiert sich diese Immobilie als ideales "Familien-Zuhause".
Das Haus wurde in hochwertiger Massivbauweise mit Vollunterkellerung errichtet und bereits beim Bau mit einer Betonwanne versehen – ein echtes Qualitätsmerkmal, das für Langlebigkeit und Sicherheit steht!
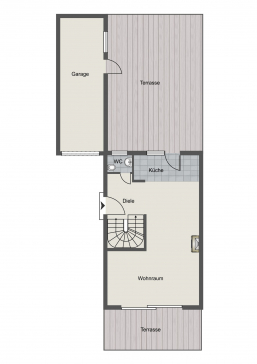
Die Wohnfläche von ca. 120 m² verteilt sich auf drei Ebenen und bietet einen durchdachten, familienfreundlichen Grundriss. Das ca. 380 m² große Grundstück ist ideal bemessen – pflegeleicht, aber mit großzügigem Raumangebot für Freizeit und Erholung. Zwei Terrassen – eine zur Ostseite, eine zur Südwestseite – ermöglichen es, dem Sonnenverlauf zu folgen und sowohl morgens als auch abends den Außenbereich in vollen Zügen zu genießen. Ob Lounge-Ecke, Kinderspielbereich oder Grillplatz: hier ist Platz für individuelle Gestaltung. Zusätzlich gehört selbstverständlich auch noch der halbe Grundstücksanteil der Zuwegung zum Kaufobjekt.
Das Erdgeschoss bildet das Herzstück des Hauses: ein großzügiger, offen gestalteter Wohn- und Essbereich mit bodentiefen Fensterfronten bietet direkten Zugang zur Südwest-Terrasse und in den Garten. Ein gemütlicher Kaminofen sorgt im Winter für wohlige Wärme und eine behagliche Atmosphäre. Die offene Küche mit Zugang zur morgendlichen Sonnenterrasse fügt sich nahtlos in das Raumkonzept ein – kommunikativ, modern und funktional. Ein Gäste-WC rundet die Erdgeschoss-Ebene perfekt ab.
Im Obergeschoss erwarten Sie zwei gut geschnittene Schlafzimmer, ein Arbeitszimmer sowie ein hochwertiges Tageslichtbad mit Dusche und Badewanne. Das ausgebaute Dachgeschoss bietet einen zusätzlichen, großzügigen Raum – ideal als Jugendzimmer oder Gästebereich.
Der sehr geräumige Keller bietet neben viel Stauraum und Platz für Hauswirtschaft auch einen großzügigen Hobbyraum. Abgerundet wird das Angebot durch eine Garage mit komfortabler Überlänge – ideal für Fahrrad, Motorrad oder Werkbank – sowie einem zusätzlichen Carport direkt vor dem Haus.
Fazit: Diese hervorragend und liebevoll gepflegte Einfamilien-Doppelhaushälfte vereint eine ruhige, naturnahe Lage mit einer wertigen Bauweise und einem durchdachten Raumangebot – ein Zuhause, welches Ihnen viel Lebensqualität bietet und in dieser Kombination selten zu finden ist.
Willkommen im Tiergartenviertel – einer der gefragtesten Wohnlagen Krefelds!
Ausstattung
- hervorragende Wohnlage, am Rande des Tiergartenviertels!
- sehr gute, familiengerechte Grundrissgestaltung
- liebevoll gepflegter Zustand
- hochwertiger Marmorboden im Erdgeschoss
- Fußbodenheizung im Erdgeschoss
- doppelverglaste Kunststoff Fenster
- jüngeres Baujahr
- Hochwertige Marmor Oberböden im Erdgeschoss
- offener Küchenbereich
- Kaminofen
- zwei Terrassen
- Carport
- Einzelgarage mit Überlänge
- 4 Schlafzimmer
- Gas-Zentralheizung aus Baujahr
- vollunterkellert in Betonwanne
- ein Glasfaseranschluss wurde bereits durch den Eigentümer beantragt – die Anbindung an das Hochgeschwindigkeitsnetz ist somit vorbereitet
- uvm.!
Grundrisse
Lage
Das Tiergartenviertel in Krefeld zählt zu den begehrtesten Wohnlagen der Stadt und vereint urbanes Lebensgefühl mit naturnahem Wohnen auf besonders attraktive Weise. Geprägt von gepflegten Einfamilienhäusern, stilvollen Stadtvillen und großzügigen Grundstücken, strahlt das Viertel eine ruhige, gehobene Atmosphäre aus. Die direkte Nähe zum weitläufigen Krefelder Stadtwald und dem beliebten Krefelder Zoo bietet ideale Voraussetzungen für Spaziergänge, Sport und Erholung im Grünen.
Gleichzeitig ist die Innenstadt mit ihren vielfältigen Einkaufsmöglichkeiten, Cafés und kulturellen Angeboten in wenigen Minuten erreichbar. Schulen, Kindergärten sowie medizinische Versorgung befinden sich ebenfalls in unmittelbarer Umgebung, was das Tiergartenviertel besonders für Familien interessant macht.
Eine sehr gute Verkehrsanbindung rundet das Bild dieser hochwertigen Wohnlage ab. Wer Wert auf ein stilvolles und zugleich naturnahes Wohnumfeld legt, findet im Tiergartenviertel eine der besten Adressen Krefelds.
Sonstiges
Weitere interessante Angebote: WWW.KERSTING-IMMOBILIEN.DE
Sie möchten Ihre Immobilie jetzt oder später verkaufen bzw. vermieten? Dann nutzen Sie unsere über 37jährige Erfahrung in der Vermittlung von Immobilien!
Gerne bewerten wir kostenfrei auch Ihre Immobilie und erstellen Ihnen ganz unverbindlich ein individuelles Vermarktungskonzept.
Einfach anrufen, mailen oder ein Besuch in unserem Immobilienshop Uerdinger Str. 242 in Krefeld-Bockum. Wir sind gerne für Sie da!
Wir wurden 2024 erneut mehrfach ausgezeichnet:
BELLEVUE BEST PROPERTY AGENT 2024
IMMOBILIENSCOUT PREMIUMPARTNER 2024
FOCUS TOP IMMOBILIENMAKLER 2024
IMMOWELT BUSINESSPARTNER 2024
...und auch 2025 wieder:
BELLEVUE BEST PROPERTY AGENT 2025
IMMOBILIENSCOUT EXPERT 2025
FOCUS TOP IMMOBILIENMAKLER
IMMOWELT BUSINESSPARTNER
Energieausweis
- Ausweistyp: Verbrauch
- Verbrauchskennwert: 87.83 kWh/(m²*a)
- Endenergiebedarf: kWh/(m²*a)
- Gültig bis: 2035-06-29
- Befeuerungsart: Gas
- Baujahr der Heizanlage:
- Energiekennwert: C























Der guten Ordnung halber möchten wir darauf aufmerksam machen, dass bei Abschluss eines notariellen Kaufvertrages, der durch unseren Nachweis und/oder Vermittlung zustande kommt, der Käufer an uns eine Maklerprovision in Höhe von 3,57% inkl. 19% MwSt. des Kaufpreises zu zahlen hat. Sämtliche Angaben erhielten wir vom Eigentümer. Bitte haben Sie Verständnis dafür, dass wir jede Haftung für die Richtigkeit der Angaben vollständig ausschließen. Außerdem möchten wir darauf hinweisen, dass im Exposé enthaltenes Bildmaterial aufgrund von Fotobearbeitungsprogrammen oder Einsatz von künstlicher Intelligenz von der Realität abweichen kann.