KR-Bockum! Schönes Einfamilien-Endhaus in beliebter Wohnlage mit 420m² Süd-Grundstück und Garage!
Daten zur Immobilie
- Objekt-Nr.5341
- Ort47800 Krefeld / Bockum
- ObjektartReihenendhaus
- Baujahr1960
- Grundstücksfläche426.00 m²
- Wohnfläche102.00 m²
- Kaufpreis Erfolgreich vermarktet!
Objektbeschreibung
Ein hervorragendes Immobilienangebot im beliebten Krefelder Blumenviertel, ganz nah am Zoo!
In sonniger Ausrichtung mit großer Süd-Terrasse präsentiert sich dieses hübsche Einfamilien-Reihenhaus als äußerst interessantes Kaufangebot. Im Jahre 1960 in massiver Bauweise mit Vollunterkellerung erstellt, wurde die Immobilie von den jetzigen Eigentümern über die Jahre umfangreich modernisiert.
So wurde beispielweise im Jahre 2005 das Dach vollständig erneuert, alle Fenster über die Jahre modernisiert - Kunststoff mit Doppelverglasung im Erdgeschoss, Holz mit Doppelverglasung im Obergeschoss, die Heizung wurde im Jahre 2017 erneuert und das Badezimmer wurde im Jahre 2022 inkl. Wasserleitungen vollständig saniert.
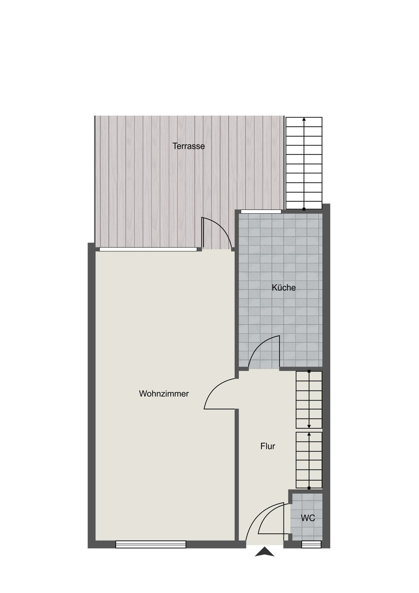
Auf insgesamt ca. 102 m² Wohnfläche wird Ihnen eine hervorragend-praktische Raumaufteilung geboten. Das Erdgeschoss überzeugt mit einem besonders großzügigen Wohn-/Essbereich - lichtdurchflutet, dank bodentiefer Fensterelemente - mit Austritt auf die Sonnen-Terrasse und in den weitläufigen, breiten Garten mit zahlreichen Gestaltungsmöglichkeiten für Eltern und Kid's.
Die derzeit separierte Küche könnte zum Wohn-/Essbereich geöffnet werden und somit zum neuen Familien-Mittelpunkt werden. Großzügiges, offenes Wohnen: hier ist es möglich!
Im Obergeschoss stehen Ihnen insgesamt 3 Schlafzimmer unterschiedlicher Größen zur Verfügung und ein perfekt saniert Tageslicht-Badezimmer mit bodentiefer Dusche.
Ein wirklich tolles Immobilienangebot in ruhiger und familienfreundlicher Lage von Krefeld Bockum! Eine wertvolle Einzelgarage ist sogar bereits im Kaufpreis enthalten und befindet sich direkt vor dem Haus.
Wir haben Ihr Interesse geweckt? Dann freuen wir uns auf Ihre Kontaktaufnahme!
Ausstattung
- Beliebte Lage im Krefelder Blumenviertel, nahe dem Zoo
- Sonnige Ausrichtung mit schöner Süd-Terrasse
- Massive Bauweise mit Vollunterkellerung (Baujahr 1960)
- Dach vollständig erneuert (2005)
- Erneuerte Fenster: Kunststoff mit Doppelverglasung (EG), Holz mit Doppelverglasung (OG)
- Moderne Heizungsanlage mit Warmwasseraufbereitung (erneuert 2017)
- Vollständig saniertes Tageslicht-Badezimmer mit bodentiefer Dusche (2022)
- Erneuerte Wasserleitungen im Badezimmer (2022)
- Großzügiger, lichtdurchfluteter Wohn-/Essbereich mit bodentiefen Fenstern
- Grüner, kinderfreundlicher Garten mit vielseitigen Gestaltungsmöglichkeiten
- 3 Schlafzimmer im Obergeschoss
- Einzelgarage direkt vor dem Haus (im Kaufpreis enthalten)
- Ruhige, familienfreundliche Wohnlage in Krefeld-Bockum
- Brunnen für die Gartenbewässerung
- uvm.!
Grundrisse
Lage
Krefeld-Bockum, die beliebteste Wohnlage in Krefeld!
Eine perfekte Infrastruktur, alle Schulen und Kindergärten in nächster Nähe! Einkaufsmöglichkeiten schnell erreichbar. Nicht umsonst hat der Ortsteil Bockum die größte Immobiliennachfrage! Ein Besuch im Zoo oder ein paar Minuten mit dem Rad zu verschiedensten Sportanlagen, dem Schönhausenpark oder auch Stadtwald.
Auch die A57 ist in wenigen Minuten erreicht und führt Sie in wenigen Kilometern nach Düsseldorf oder in Richtung Ruhrgebiet.
Eine wirklich tolle Lage mit unzähligen Freizeitangeboten!
Sonstiges
Weitere interessante Angebote: WWW.KERSTING-IMMOBILIEN.DE
Sie möchten Ihre Immobilie jetzt oder später verkaufen bzw. vermieten? Dann nutzen Sie unsere über 36jährige Erfahrung in der Vermittlung von Immobilien!
Gerne bewerten wir kostenfrei auch Ihre Immobilie und erstellen Ihnen ganz unverbindlich ein individuelles Vermarktungskonzept.
Einfach anrufen, mailen oder ein Besuch in unserem Immobilienshop Uerdinger Str. 242 in Krefeld-Bockum. Wir sind gerne für Sie da!
Wir wurden 2024 erneut mehrfach ausgezeichnet:
BELLEVUE BEST PROPERTY AGENT 2024
IMMOBILIENSCOUT PREMIUMPARTNER 2024
FOCUS TOP IMMOBILIENMAKLER 2024
IMMOWELT BUSINESSPARTNER 2024
...und auch 2025 wieder:
BELLEVUE BEST PROPERTY AGENT 2025
IMMOBILIENSCOUT EXPERT 2025
FOCUS TOP IMMOBILIENMAKLER
IMMOWELT BUSINESSPARTNER
Energieausweis
- Ausweistyp: Bedarf
- Verbrauchskennwert: kWh/(m²*a)
- Endenergiebedarf: 125.40 kWh/(m²*a)
- Gültig bis: 2035-07-15
- Befeuerungsart: Gas
- Baujahr der Heizanlage:
- Energiekennwert: D













Der guten Ordnung halber möchten wir darauf aufmerksam machen, dass bei Abschluss eines notariellen Kaufvertrages, der durch unseren Nachweis und/oder Vermittlung zustande kommt, der Käufer an uns eine Maklerprovision in Höhe von 3,57% inkl. 19% MwSt. des Kaufpreises zu zahlen hat. Sämtliche Angaben erhielten wir vom Eigentümer. Bitte haben Sie Verständnis dafür, dass wir jede Haftung für die Richtigkeit der Angaben vollständig ausschließen. Außerdem möchten wir darauf hinweisen, dass im Exposé enthaltenes Bildmaterial aufgrund von Fotobearbeitungsprogrammen oder Einsatz von künstlicher Intelligenz von der Realität abweichen kann.