KR-Bockum! Freistehendes Ein-Zweifamilienhaus mit viel Potenzial auf parkähnlichem Sonnen-Grundstück
Daten zur Immobilie
- Objekt-Nr.5345
- Ort47800 Krefeld / Bockum
- ObjektartEinfamilienhaus
- Baujahr1961
- Grundstücksfläche1595.00 m²
- Wohnfläche263.00 m²
- Kaufpreis 879.000,- €
Objektbeschreibung
In einer der gefragtesten Wohnlagen Krefelds, im Herzen von Bockum, präsentiert sich dieses stilvolle freistehende Einfamilienhaus mit Einliegerbereich auf einem weitläufigen 1.595m² großen Grundstück in sonniger Südwestlage.
Die Immobilie wurde im Jahr 1961 in massiver Bauweise errichtet und überzeugt mit einem durchdachten Raumkonzept, großzügigen Wohnflächen und viel Potenzial für individuelle Lebensmodelle.
Das Haus bietet eine gesamte Wohnfläche von rund 263m², verteilt auf zwei separate Nutzungseinheiten. Im Vorderhaus stehen Ihnen ca. 185m² genehmigte Wohnfläche zur Verfügung. Ergänzt wird dieser Bereich durch einen architektonisch ansprechenden, nachträglich angebauten und vollständig verglasten Wintergarten mit wunderbarem Panoramablick. Die behördliche Nachgenehmigung wurde bereits mündlich zugesagt und befindet sich in Vorbereitung.
Ein separater Anbau aus dem Jahr 1980 ergänzt das Ensemble um eine weitere Wohneinheit mit eigenem Eingang und ca. 78m² Wohnfläche verteilt auf Erdgeschoss und Souterrain. Ob als Einliegerwohnung, Büroeinheit oder Mehrgenerationenlösung – die Nutzungsmöglichkeiten sind vielfältig.
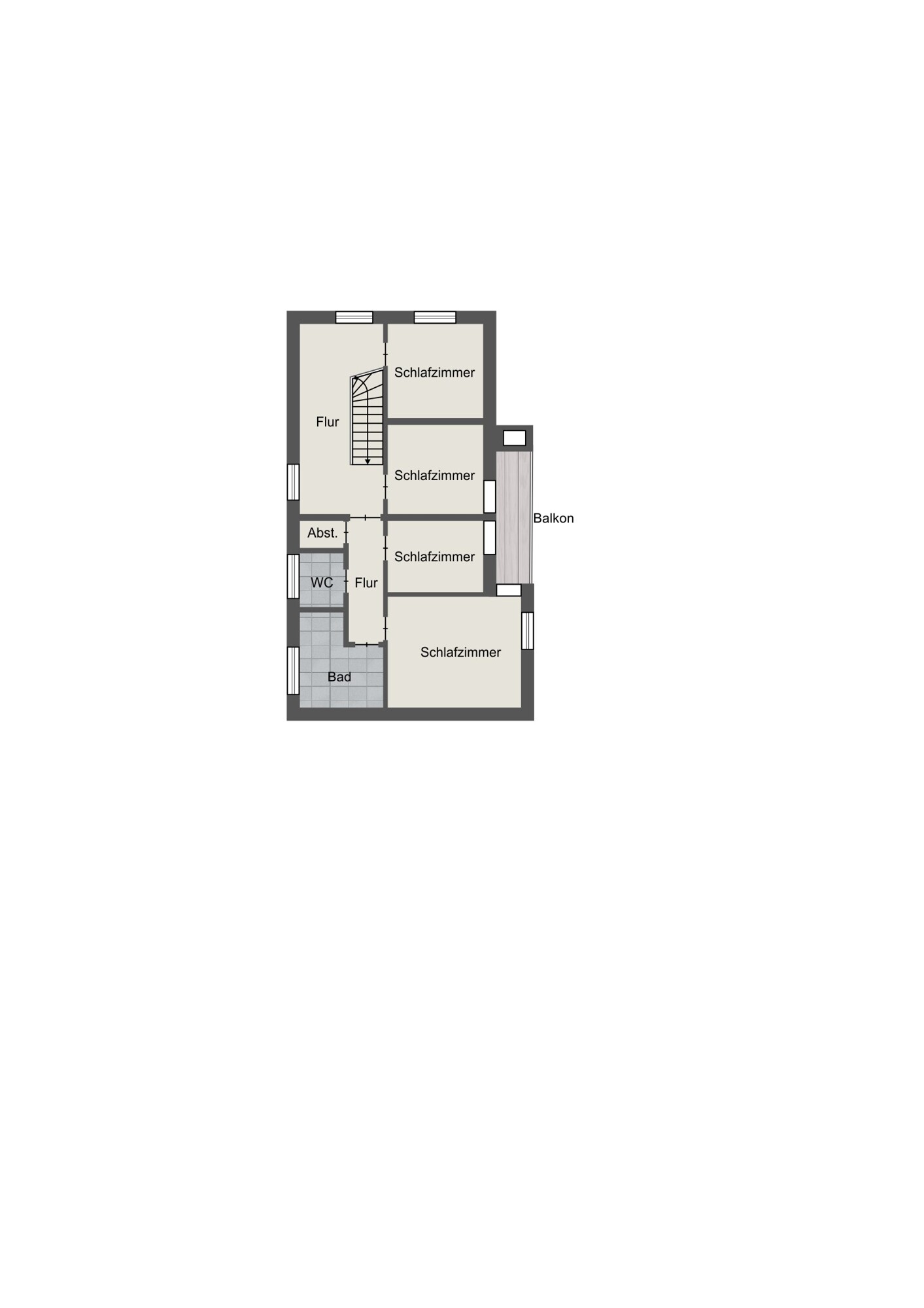
Der offen gestaltete Wohn- und Essbereich im Split-Level-Stil besticht durch seine Weitläufigkeit und Großzügigkeit. Große Fensterfronten eröffnen den Blick in den geschützten Garten und verbinden harmonisch Innen- und Außenraum. Die angrenzende Küche sowie ein Gäste-WC vervollständigen das Erdgeschoss. Mit etwas handwerklichem Geschick ließe sich die Küche öffnen und so das offene Raumkonzept abrunden. Im lichtdurchfluteten Obergeschoss stehen vier flexibel nutzbare Zimmer sowie ein Tageslichtbad mit Dusche und ein separates WC zur Verfügung.
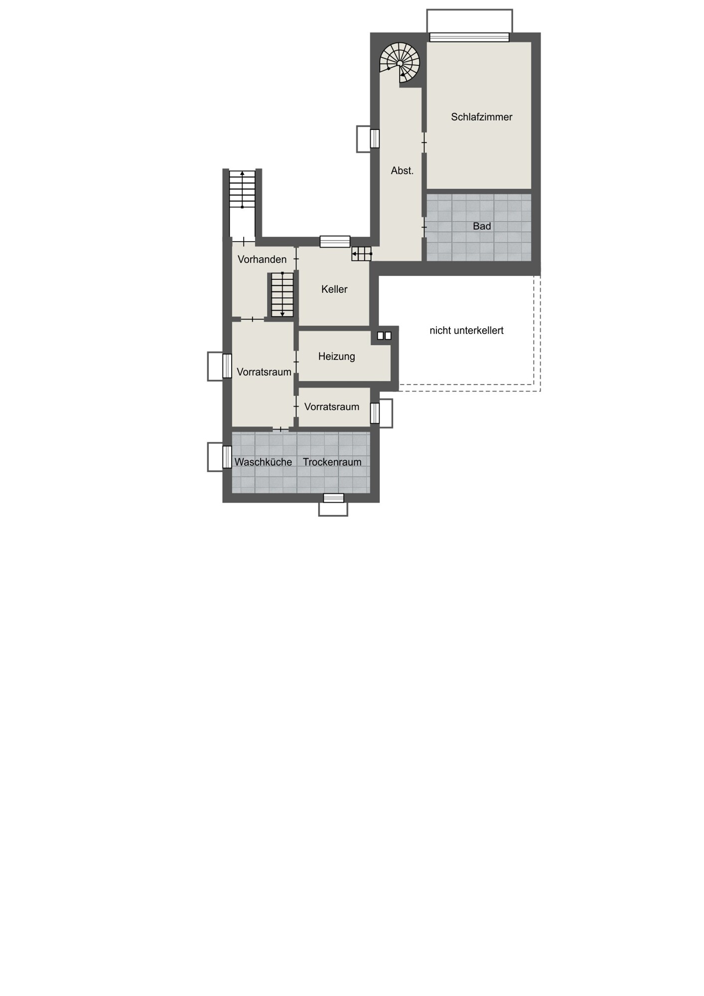
Der Teilkeller bietet neben Abstellflächen einen praktischen Hauswirtschaftsbereich mit direktem Zugang zum Garten. Zwei separate Garagen ermöglichen einen komfortablen, überdachten Zugang in den Wintergarten und in das Haupthaus.
Die Immobilie wurde über die Jahre hinweg sorgfältig gepflegt. Der Ausstattungsstandard entspricht jedoch überwiegend dem Baujahr, sodass vor Bezug eine Modernisierung nach individuellem Geschmack empfehlenswert ist.
Das Grundstück selbst ist ein echtes Highlight: mit altem Baumbestand, dichtem Strauchwerk und absoluter Privatsphäre bietet es ein naturnahes Umfeld mit hohem Erholungswert – eine echte Rarität in dieser Wohnlage. Optional kann ein weiteres, direkt angrenzendes Grundstück mit ca. 400m² erworben werden, um das Gartenparadies perfekt zu machen.
Diese Immobilie bietet durch ihre Substanz, die Lage, das Raumangebot und zeitlose Architektur ideale Voraussetzungen für individuelles, zeitgemäßes Wohnen – sei es als großzügiges Familienhaus, Mehrgenerationenlösung oder Wohnen mit separatem Arbeitsbereich.
Ein Angebot mit Seltenheitswert in Krefeld-Bockum!
Ausstattung
- sehr gute Wohnlage, nah am Bockumer Platz mit bester Infrastruktur
- hochwertige Massivbauweise
- doppelverglaste Fenster (überwiegend Holz)
- zwei große Garagen mit direktem Zugang ins Haus
- übergroßes Sonnengrundstück
- Öl-Zentralheizung (1994)
- 4-5 Schlafzimmer
- lichtdurchflutete Räumlichkeiten
- komfortable Grundrissgestaltung
- uvm.!
Grundrisse
Lage
Diese Immobilie befindet sich in einer der gefragtesten Wohnlagen Krefelds – unweit des beliebten Bockumer Platzes. Der Stadtteil Bockum verbindet auf einzigartige Weise ruhiges, familienfreundliches Wohnen mit städtischem Komfort. Die Umgebung besticht durch gepflegte Straßen, viel Grün und ein nachbarschaftliches Miteinander – genau das, was sich Familien, Paare und Berufspendler wünschen.
Die Versorgung im Alltag ist rundum gesichert: Supermärkte, Bäcker, Ärzte, Apotheken sowie ein vielfältiges gastronomisches Angebot befinden sich in unmittelbarer Nähe. Für junge Familien besonders attraktiv: Kindergärten, Grundschulen und weiterführende Bildungseinrichtungen sind zahlreich und gut erreichbar.
Wer in der Freizeit sportlichen Ausgleich oder Erholung im Grünen sucht, wird den nahegelegenen Stadtwald mit seinem vielseitigen Freizeitangebot zu schätzen wissen. Ob Joggen, Radfahren, Schwimmen im Badezentrum, Tennis, Golf oder ein entspannter Nachmittag im Biergarten – hier kommt jeder auf seine Kosten.
Auch die Verkehrsanbindung überzeugt: Dank der Nähe zur A57 und A44 sowie einer sehr guten Anbindung an den öffentlichen Nahverkehr ist man sowohl schnell im Zentrum Krefelds als auch zügig in Düsseldorf – die Innenstadt wie auch der Flughafen sind in etwa 20 Minuten mit dem Auto erreichbar.
Bockum bietet somit die ideale Kombination aus urbanem Leben, naturnaher Umgebung und hervorragender Erreichbarkeit – ein Standort mit hoher Lebensqualität für Menschen in jeder Lebensphase.
Sonstiges
Weitere interessante Angebote: WWW.KERSTING-IMMOBILIEN.DE
Sie möchten Ihre Immobilie jetzt oder später verkaufen bzw. vermieten? Dann nutzen Sie unsere über 37jährige Erfahrung in der Vermittlung von Immobilien!
Gerne bewerten wir kostenfrei auch Ihre Immobilie und erstellen Ihnen ganz unverbindlich ein individuelles Vermarktungskonzept.
Einfach anrufen, mailen oder ein Besuch in unserem Immobilienshop Uerdinger Str. 242 in Krefeld-Bockum. Wir sind gerne für Sie da!
Wir wurden 2025 erneut mehrfach ausgezeichnet:
BELLEVUE BEST PROPERTY AGENT 2025
IMMOBILIENSCOUT PREMIUMPARTNER 2025
FOCUS TOP IMMOBILIENMAKLER 2025
IMMOWELT BUSINESSPARTNER 2025
...und auch 2026 wieder:
BELLEVUE BEST PROPERTY AGENT 2026
IMMOBILIENSCOUT EXPERT 2026
FOCUS TOP IMMOBILIENMAKLER
IMMOWELT BUSINESSPARTNER
Energieausweis
- Ausweistyp: Bedarf
- Verbrauchskennwert: kWh/(m²*a)
- Endenergiebedarf: 154.80 kWh/(m²*a)
- Gültig bis: 2035-08-04
- Befeuerungsart: Öl
- Baujahr der Heizanlage:
- Energiekennwert: E
























Der guten Ordnung halber möchten wir darauf aufmerksam machen, dass bei Abschluss eines notariellen Kaufvertrages, der durch unseren Nachweis und/oder Vermittlung zustande kommt, der Käufer an uns eine Maklerprovision in Höhe von 3,57% inkl. 19% MwSt. des Kaufpreises zu zahlen hat. Sämtliche Angaben erhielten wir vom Eigentümer. Bitte haben Sie Verständnis dafür, dass wir jede Haftung für die Richtigkeit der Angaben vollständig ausschließen. Außerdem möchten wir darauf hinweisen, dass im Exposé enthaltenes Bildmaterial aufgrund von Fotobearbeitungsprogrammen oder Einsatz von künstlicher Intelligenz von der Realität abweichen kann.