Großzügiger Bungalow mit Privatsphäre in brillanter Lage zwischen Stadtwald und Musikerviertel
Daten zur Immobilie
- Objekt-Nr.5351
- Ort47800 Krefeld
- ObjektartBungalow
- Baujahr1973
- Grundstücksfläche1461.00 m²
- Wohnfläche205.00 m²
- Kaufpreis 1.495.000,- €
Objektbeschreibung
Willkommen in einer der begehrtesten Wohnlagen Krefelds - Wilhelmshofallee!
Zwischen dem Krefelder Stadtwald und dem beliebten Musikerviertel vereint dieser charmante Bungalow Ruhe, Privatsphäre und echtes Potenzial – ein Zuhause nach Ihren eigenen Vorstellungen zu gestalten.
Ursprünglich in den 70ern errichtet und Ende der 1980er-Jahre durch einen Anbau erweitert, befindet sich diese Immobilie in zweiter Reihe einer namhaften Straße und verbindet damit die repräsentative Adresse mit einer angenehm diskreten Lage.
Herzstück der Immobilie ist das außergewöhnlich großzügige Wohn- und Esszimmer mit bodentiefen Fensterelementen und einem gemütlichen Kamin – ein Raum, der Helligkeit, Weite und Behaglichkeit perfekt miteinander verbindet.
Darüber hinaus bietet der Bungalow vier sehr große Schlafzimmer, ein weiteres Arbeitszimmer, zwei vollwertige Bäder, ein Gäste-WC sowie ein Duschbad im Untergeschoss. Damit ist ausreichend Platz sowohl für Familien als auch für Paare mit dem Wunsch nach großzügigem Wohnen.
Besonders beeindruckend ist der traumhafte, weitläufige Garten: Eine grüne Oase, die zum Entspannen, Spielen und Genießen einlädt. Hier können Sie die Vorzüge des Wohnens im Grünen mit altem Baumbestand und spielenden Kindern im Garten genießen. Auch die große Terrasse mit optimaler Ausrichtung lädt zum Verweilen und Grillen mit Family & Friends ein.
Der Bungalow selbst bietet eine solide Basis mit durchdachtem Grundriss, viel Licht, einer nachträglich eingebauten "weißen Wanne" sowie nagelneuer Gas-Zentralheizung. Die ein oder andere Modernisierung, um den heutigen Wohnansprüchen gerecht zu werden, bleibt nicht aus. Gerade darin liegt die große Chance: Gestalten Sie Ihr individuelles Refugium in einer Lage, die kaum noch Wünsche offenlässt.
Ein Zuhause mit Charakter, Geschichte und einzigartigem Potenzial – entdecken Sie diesen Bungalow in bester Krefelder Wohnlage und lassen Sie sich von den Möglichkeiten inspirieren.
Ausstattung
- hervorragende Adresse am Stadtwald
- ruhige Lage in 2. Reihe mit Privatsphäre
- barrierearmer Bungalow mit vielen Fensterelementen
- märchenhafter Gartenpark
- gute Grundrissgestaltung mit großen Zimmern
- gemütlicher Kamin im Wohnbereich Outdoor-Kamin
- zwei Tageslichtbäder zzgl. Gäste-WC
- weitere Dusche im Untergeschoss
- nachträglich eingebaute "weiße Wanne"
- Erweiterung der Immobilie in 1989
- Brunnenanschluss
- elektrische Markise
- extralange Garage
- Gas Zentralheizung aus 2025
- uvm.
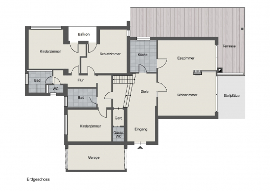
Grundrisse
Lage
Zwischen Musikviertel und Stadtwald! Die Krefelder Bestlage!
Eine überregional höchst gefragte Wohnadresse mit bundesweitem Zulauf und namhafter Nachbarschaft.
Sämtliche Einrichtungen für das tägliche Leben liegen in unmittelbarer Nähe. Schulen und Kindergärten ganz nah anbei, Tennis- und Hockeyvereine sowie der 9-Loch-Stadtwald Golfplatz sind schnell fußläufig erreichbar. Verkehrstechnisch ideal angebunden, erreichen Sie den Düsseldorfer Flughafen oder das Ruhrgebiet in weniger als 20 Minuten.
Eine rundum perfekte Wohnadresse mit Geschichte!
Sonstiges
Weitere interessante Angebote: WWW.KERSTING-IMMOBILIEN.DE
Sie möchten Ihre Immobilie jetzt oder später verkaufen bzw. vermieten? Dann nutzen Sie unsere über 37jährige Erfahrung in der Vermittlung von Immobilien!
Gerne bewerten wir kostenfrei auch Ihre Immobilie und erstellen Ihnen ganz unverbindlich ein individuelles Vermarktungskonzept.
Einfach anrufen, mailen oder ein Besuch in unserem Immobilienshop Uerdinger Str. 242 in Krefeld-Bockum. Wir sind gerne für Sie da!
Wir wurden 2025 erneut mehrfach ausgezeichnet:
BELLEVUE BEST PROPERTY AGENT 2025
IMMOBILIENSCOUT PREMIUMPARTNER 2025
FOCUS TOP IMMOBILIENMAKLER 2025
IMMOWELT BUSINESSPARTNER 2025
...und auch 2026 wieder:
BELLEVUE BEST PROPERTY AGENT 2026
IMMOBILIENSCOUT EXPERT 2026
FOCUS TOP IMMOBILIENMAKLER
Energieausweis
- Ausweistyp: Bedarf
- Verbrauchskennwert: kWh/(m²*a)
- Endenergiebedarf: 123.90 kWh/(m²*a)
- Gültig bis: 2035-08-27
- Befeuerungsart: Gas
- Baujahr der Heizanlage:
- Energiekennwert: D






Der guten Ordnung halber möchten wir darauf aufmerksam machen, dass bei Abschluss eines notariellen Kaufvertrages, der durch unseren Nachweis und/oder Vermittlung zustande kommt, der Käufer an uns eine Maklerprovision in Höhe von 3,57% inkl. 19% MwSt. des Kaufpreises zu zahlen hat. Sämtliche Angaben erhielten wir vom Eigentümer. Bitte haben Sie Verständnis dafür, dass wir jede Haftung für die Richtigkeit der Angaben vollständig ausschließen. Außerdem möchten wir darauf hinweisen, dass im Exposé enthaltenes Bildmaterial aufgrund von Fotobearbeitungsprogrammen oder Einsatz von künstlicher Intelligenz von der Realität abweichen kann.