Krefeld Bockum! Bezugsfertiges, lichtdurchflutetes Endhaus mit Garage & charmantem Garten (Erbpacht)
Daten zur Immobilie
- Objekt-Nr.5384
- Ort47800 Krefeld / Bockum
- ObjektartReihenendhaus
- Baujahr1965
- Grundstücksfläche267.00 m²
- Wohnfläche104.00 m²
- Kaufpreis 375.000,- €
Objektbeschreibung
Dieses lichtdurchflutete Reihenendhaus in beliebter Lage von Krefeld-Bockum überzeugt durch seinen besonderen Charme, die großzügigen Fensterflächen und eine gelungene Modernisierung. Dank der Ecklage genießt man hier nicht nur viel Helligkeit, sondern auch ein hohes Maß an Privatsphäre.
Die Immobilie wurde etwa im Jahr 2009 umfassend modernisiert. Dabei wurden alle Fenster durch hochwertige Kunststofffenster mit Isolierverglasung ersetzt, ebenso die Haustür. Außerdem wurden die Böden und Wandbeläge erneuert, ein Durchbruch zur Küche geschaffen, das Gäste-WC sowie das Badezimmer mit bodentiefer Dusche komplett neu gestaltet. Auch die gesamte Elektrik und die Leitungen wurden im Zuge der Modernisierung erneuert, sodass das Haus technisch und optisch auf einem zeitgemäßen Stand ist.
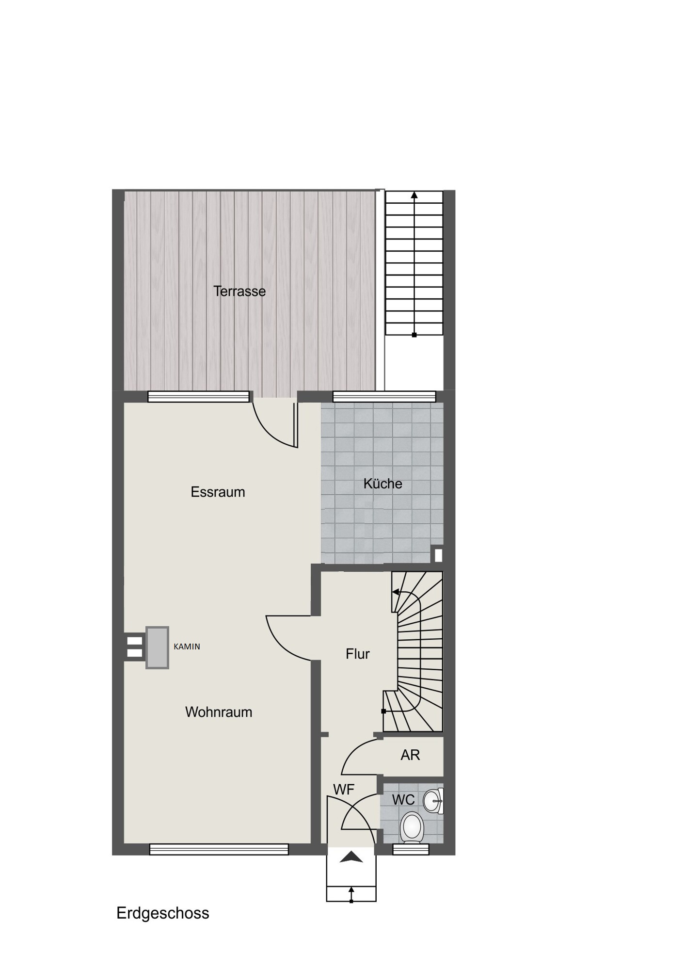
Im Erdgeschoss erwartet Sie ein heller, offener Wohn- und Essbereich mit gemütlichem Kaminofen, der durch seine vielen Fenster besonders freundlich wirkt und einen direkten Zugang zur überdachten Terrasse bietet. Diese lädt zum Verweilen und Entspannen ein – auch bei weniger schönem Wetter. Der Garten ist liebevoll angelegt und bietet mit einem charmanten Gartenhaus zusätzlichen Stauraum oder Platz für Hobby und Freizeit.
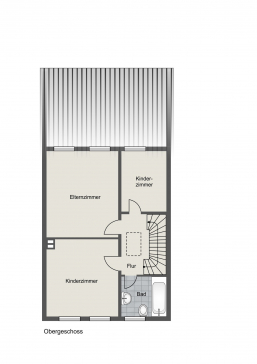
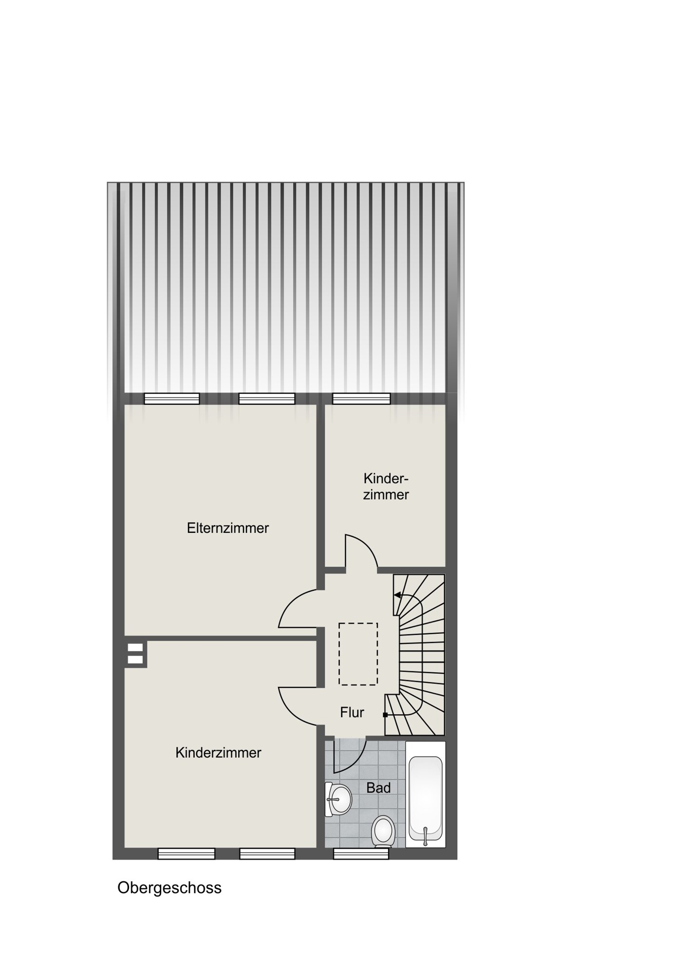
Im Obergeschoss stehen drei gut geschnittene Schlafzimmer sowie das moderne Tageslichtbad zur Verfügung. Durch die geschickte Raumaufteilung eignet sich das Haus ideal für Familien, Paare oder Menschen, die ein zusätzliches Arbeits- oder Gästezimmer benötigen.
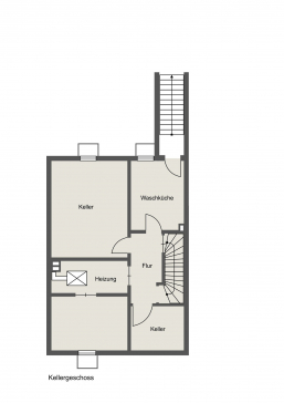
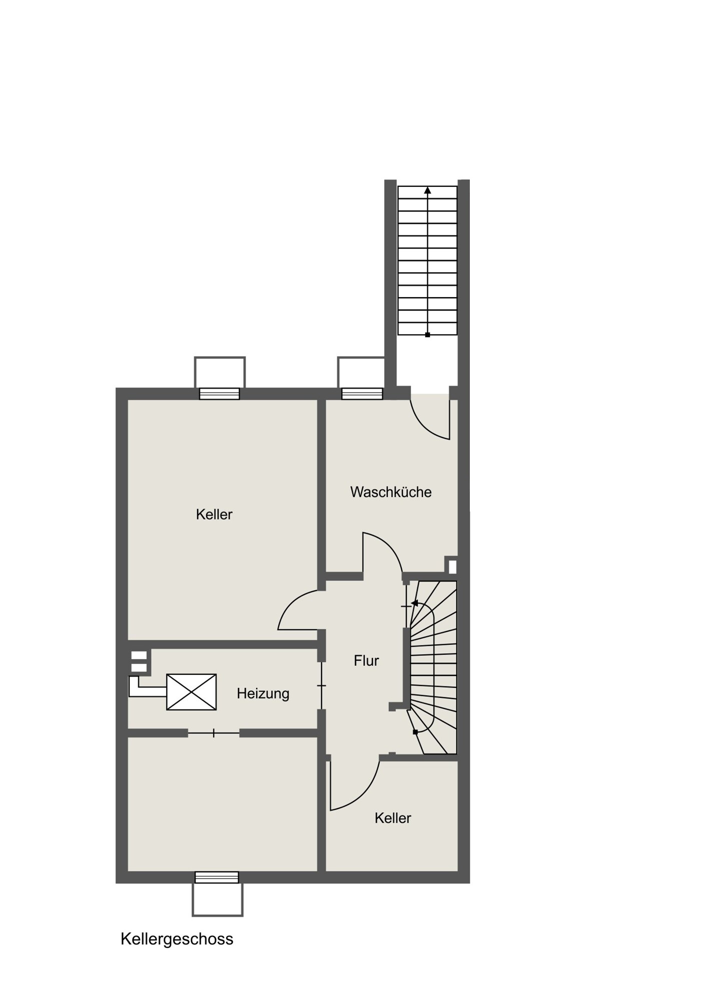
Genügend Stau- und Lagerflächen stehen Ihnen im noch nicht ausgebauten Spitzboden oder dem gut nutzbaren Keller zur Verfügung. Hier finden Sie neben der klasssichen Waschküche auch einen weiteren Zugang in den Garten über die überdachte Kelleraußentreppe. Eine Einzelgarage grenzt direkt an das Haus an und bietet den dritten, praktischen Zugang in den Garten.
Die Immobilie steht auf einem Erbpachtgrundstück, der monatliche Erbpachtzins liegt mit 138 Euro auf einem moderaten Niveau. Eine besondere Option stellt das angrenzende, rund 900 Quadratmeter große Gartengrundstück dar, das auf Wunsch zusätzlich erworben werden kann. Dieses Grundstück ist kein Erbpachtgrundstück und verfügt über eine großzügige Remise, die sich ideal für Bastler, Heimwerker oder Sammler eignet. Auch das Abstellen von mindestens zwei Fahrzeugen ist hier problemlos möglich. Das Grundstück ist mit Obstbäumen bepflanzt und bietet einen wunderbaren Ort zur Erholung und Entspannung. Der Kauf dieses Grundstücks ist optional und der Preis ist verhandelbar.
Insgesamt präsentiert sich dieses Reihenendhaus als ein helles, gepflegtes Zuhause mit vielen durchdachten Details, einer hochwertigen Modernisierung und optionaler Erweiterungsmöglichkeit. Eine Immobilie mit Charakter und Potenzial – ideal für alle, die in Krefeld Bockum ein gemütliches, gut ausgestattetes Haus mit schöner Außenanlage suchen und ohne großen Arbeitsaufwand einziehen möchten.
Ausstattung
- modernisiertes Reihenendhaus
- familienfreundlicher Grundriss
- lichtdurchflutete Räume
- drei Schlafzimmer mit guten Größen
- modernes Gäste-WC im Erdgeschoss
- modernes Bad mit bodentiefer Dusche
- offener Wohn/ Essbereich
- gemütlicher Kaminofen
- offene Küche mit zeitlosen Einbauten
- doppelund isolierverglaste Kunststoff-Fenster 2008
- neue Elektrik in ca. 2009
- neue Zuund Abwasserleitungen in ca. 2009
- Gas-Zentralheizung ca. 2009
- angrenzende Einzelgarage
- Erbpachtgrundstück (138€ / Monat)
- optional angrenzendes Grundstück zu erwerben (ca. 873m²)
- uvm.
Grundrisse
Lage
Diese Immobilie befindet sich in einer der gefragtesten Wohnlagen Krefelds – unweit des beliebten Bockumer Platzes. Der Stadtteil Bockum verbindet auf einzigartige Weise ruhiges, familienfreundliches Wohnen mit städtischem Komfort. Die Umgebung besticht durch gepflegte Straßen, viel Grün und ein nachbarschaftliches Miteinander – genau das, was sich Familien, Paare und Berufspendler wünschen.
Die Versorgung im Alltag ist rundum gesichert: Supermärkte, Bäcker, Ärzte, Apotheken sowie ein vielfältiges gastronomisches Angebot befinden sich in unmittelbarer Nähe. Für junge Familien besonders attraktiv: Kindergärten, Grundschulen und weiterführende Bildungseinrichtungen sind zahlreich und gut erreichbar.
Wer in der Freizeit sportlichen Ausgleich oder Erholung im Grünen sucht, wird den nahegelegenen Stadtwald mit seinem vielseitigen Freizeitangebot zu schätzen wissen. Ob Joggen, Radfahren, Schwimmen im Badezentrum, Tennis, Golf oder ein entspannter Nachmittag im Biergarten – hier kommt jeder auf seine Kosten.
Auch die Verkehrsanbindung überzeugt: Dank der Nähe zur A57 und A44 sowie einer sehr guten Anbindung an den öffentlichen Nahverkehr ist man sowohl schnell im Zentrum Krefelds als auch zügig in Düsseldorf – die Innenstadt wie auch der Flughafen sind in etwa 20 Minuten mit dem Auto erreichbar.
Bockum bietet somit die ideale Kombination aus urbanem Leben, naturnaher Umgebung und hervorragender Erreichbarkeit – ein Standort mit hoher Lebensqualität für Menschen in jeder Lebensphase.
Sonstiges
Weitere interessante Angebote: WWW.KERSTING-IMMOBILIEN.DE
Sie möchten Ihre Immobilie jetzt oder später verkaufen bzw. vermieten? Dann nutzen Sie unsere über 36jährige Erfahrung in der Vermittlung von Immobilien!
Gerne bewerten wir kostenfrei auch Ihre Immobilie und erstellen Ihnen ganz unverbindlich ein individuelles Vermarktungskonzept.
Einfach anrufen, mailen oder ein Besuch in unserem Immobilienshop Uerdinger Str. 242 in Krefeld-Bockum. Wir sind gerne für Sie da!
Wir wurden 2024 erneut mehrfach ausgezeichnet:
BELLEVUE BEST PROPERTY AGENT 2024
IMMOBILIENSCOUT PREMIUMPARTNER 2024
FOCUS TOP IMMOBILIENMAKLER 2024
IMMOWELT BUSINESSPARTNER 2024
...und auch 2025 wieder:
BELLEVUE BEST PROPERTY AGENT 2025
IMMOBILIENSCOUT EXPERT 2025
FOCUS TOP IMMOBILIENMAKLER
IMMOWELT BUSINESSPARTNER
Energieausweis
- Ausweistyp: Bedarf
- Verbrauchskennwert: kWh/(m²*a)
- Endenergiebedarf: 172.80 kWh/(m²*a)
- Gültig bis: 2025-11-06
- Befeuerungsart: Gas
- Baujahr der Heizanlage:
- Energiekennwert: F





















Der guten Ordnung halber möchten wir darauf aufmerksam machen, dass bei Abschluss eines notariellen Kaufvertrages, der durch unseren Nachweis und/oder Vermittlung zustande kommt, der Käufer an uns eine Maklerprovision in Höhe von 2.975% inkl. 19% MwSt. des Kaufpreises zu zahlen hat. Sämtliche Angaben erhielten wir vom Eigentümer. Bitte haben Sie Verständnis dafür, dass wir jede Haftung für die Richtigkeit der Angaben vollständig ausschließen. Außerdem möchten wir darauf hinweisen, dass im Exposé enthaltenes Bildmaterial aufgrund von Fotobearbeitungsprogrammen oder Einsatz von künstlicher Intelligenz von der Realität abweichen kann.