Traarer Wohnidylle: Zweifamilienhaus in ruhiger, unverbaubarer Feldrandlage
Daten zur Immobilie
- Objekt-Nr.5387
- Ort47802 Krefeld / Traar
- ObjektartZweifamilienhaus
- Baujahr1967
- Grundstücksfläche531.00 m²
- Wohnfläche245.00 m²
- Kaufpreis Erfolgreich vermarktet!
Objektbeschreibung
In exponierter Wohnlage von Krefeld-Traar, unmittelbar an unverbaubaren Feldern gelegen, befindet sich dieses freistehende Zweifamilienhaus. Ein seltenes Stück Traarer Wohnkultur: ursprünglich um die Jahrhundertwende 1800/1900
als kleines Bauernhaus errichtet, wurde das Gebäude Mitte der 1960er-Jahre nahezu neu aufgebaut und großzügig erweitert. Mit der erneuten Erweiterung im Jahr 2014 – einer beeindruckenden, hausbreiten Dachgaube, die dem Obergeschoss eine außergewöhnliche Großzügigkeit verleiht – stehen heute rund 245 m² Wohnfläche zur Verfügung, verteilt auf zwei klar voneinander getrennte Wohneinheiten.
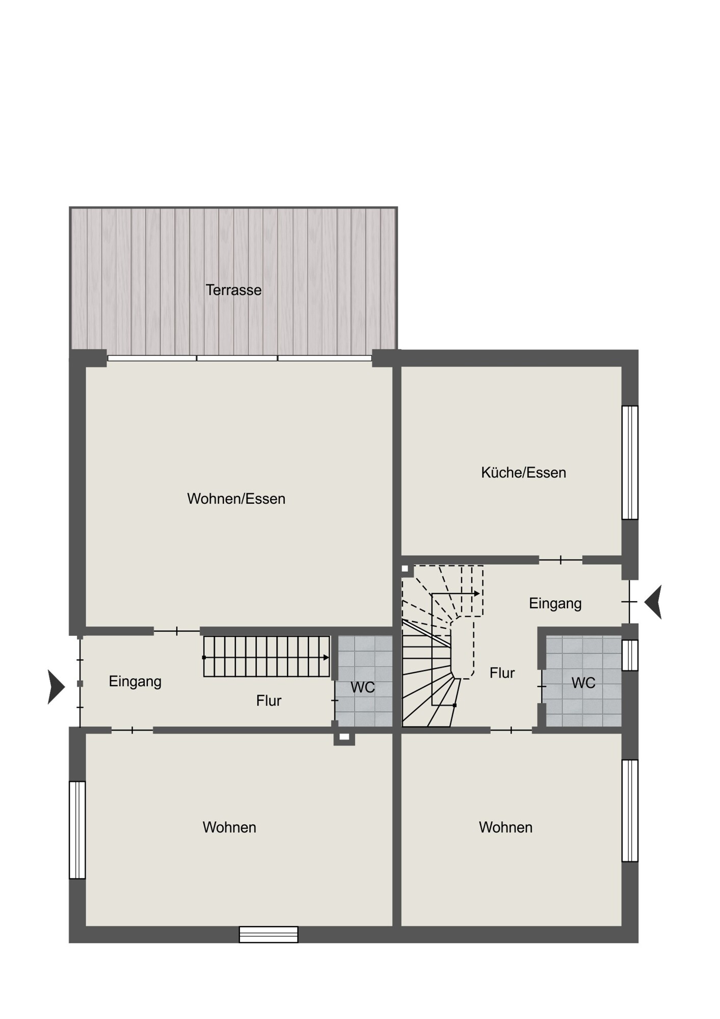
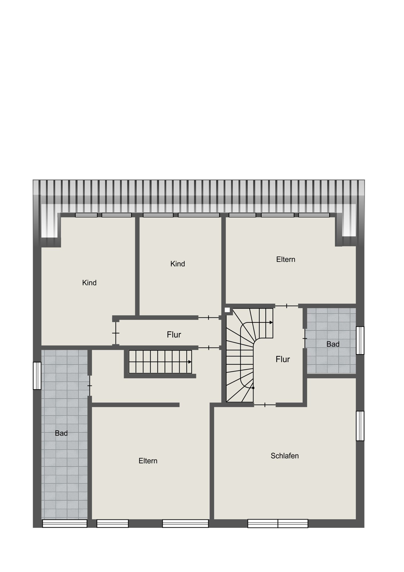
Die größere Einheit bietet ca. 144 m² Wohnfläche und überzeugt durch eine praktische Raumaufteilung. Im Obergeschoss befinden sich drei Schlafzimmer sowie ein modernisiertes Tageslichtbad mit Dusche und Wanne. Im Erdgeschoss stehen ein Wohnbereich, ein Gäste-WC sowie ein großzügiger Essbereich mit offener Küche zur Verfügung. Von hier aus gelangen Sie auf die überdachte Terrasse und in den Garten.
Die zweite Wohneinheit erstreckt sich ebenfalls über zwei Etagen. Im Erdgeschoss befinden sich ein Küchenbereich, ein Gäste-WC und ein Wohnzimmer, während das Obergeschoss zwei weitere Schlafzimmer und ein Badezimmer bietet. Beide Wohneinheiten sind unterkellert und bieten zusätzliche Nutzfläche für Hobby, Vorräte oder Technik.
Das Grundstück selbst wird durch eine Garage, einen großen Schuppen sowie zwei PKW-Stellplätze sinnvoll ergänzt.
Die Eigentümer haben das Haus im Laufe der Zeit verlässlich begleitet und wichtige Erhaltungsmaßnahmen vorgenommen. Dazu zählen unter anderem die vollständige Erneuerung des Daches im Zuge des Gaubeneinbaus, die Sanierung eines Badezimmers sowie teilweise erneuerte Fenster. Angesichts des Alters des Gebäudes eröffnet sich für zukünftige Bewohner zugleich die Möglichkeit, weitere Modernisierungen nach persönlichen Vorstellungen und heutigen Anforderungen umzusetzen.
Ein Haus mit Geschichte und viel Platz, das in einer herrlich ruhigen Feldrandlage von Krefeld-Traar eine seltene Kombination aus naturnahem Wohnen und vielfältigen Nutzungsmöglichkeiten bietet. Mit etwas Gestaltungslust lässt sich dieser Ort zu einem persönlich geprägten Zuhause mit besonderem Charakter entwickeln – eine Gelegenheit, die in dieser Lage nicht oft zu finden ist.
Ausstattung
- freistehendes Zweifamilienhaus in ruhiger Feldrandlage von Krefeld-Traar
- rund 245 m² Wohnfläche auf zwei Wohneinheiten verteilt
- große, hausbreite Dachgaube aus 2014
- vollständige Dacherneuerung im Zuge des Gaubeneinbaus
- modernisiertes Tageslichtbad mit Dusche und Wanne in der größeren Einheit
- zweite Wohneinheit mit eigenem Bad und zwei Schlafzimmern
- offene Küche mit angrenzendem Essbereich und direktem Terrassenzugang
- überdachte Terrasse mit Blick ins Grüne
- Kellergeschosse in beiden Wohneinheiten
- teilweise erneuerte Fenster
- Garage und zwei PKW-Stellplätze
- großer Schuppen mit zusätzlicher Nutzfläche
- ruhiges, naturnahes Grundstück am unverbaubaren Feldrand
- Öl-Zentralheizung
- Modernisierungsbedarf entsprechend des Gebäudealters
Grundrisse
Lage
Der Ortsteil Traar gehört zu den gefragtesten Wohnadressen Krefelds. Die Immobilie befindet sich dabei in einer äußerst seltenen Feldrandlage, die in dieser Form nur noch begrenzt zu finden ist. Direkt angrenzende Wiesen und Felder bieten einen unverstellten Blick ins Grüne und schaffen eine außergewöhnlich ruhige, naturnahe Wohnatmosphäre. Diese besondere Lage sorgt nicht nur für maximale Privatsphäre, sondern ermöglicht auch ein unmittelbares Naturerlebnis – ideal für Spaziergänge, Radtouren oder einfach zum Entspannen in idyllischer Umgebung.
Mit guter Anbindung an die Autobahn und zwei Buslinien in unmittelbarer Nähe präsentiert sich der Standort dennoch sehr verkehrsgünstig und damit in vielerlei Hinsicht hoch interessant. Naherholungsgebiete wie der Elfrather See und der Egelsberg sind in wenigen Minuten erreichbar, genauso wie zwei nahegelegene Golfplätze, die das Freizeitangebot perfekt ergänzen.
Krefeld-Traar ist eine begehrte und gehobene Wohngegend mit überwiegend Einfamilienhaus-Bebauung. Beste Einkaufsmöglichkeiten für den täglichen Bedarf, eine Grundschule, Kindergärten sowie diverse Sport- und Freizeiteinrichtungen sind bequem zu Fuß oder mit dem Rad erreichbar. Der Ortsteil bietet eine hervorragende Infrastruktur und verbindet naturnahes Wohnen auf hohem Niveau mit einer sehr guten Versorgungslage.
Hier wohnen Sie gerne!
Sonstiges
Weitere interessante Angebote: WWW.KERSTING-IMMOBILIEN.DE
Sie möchten Ihre Immobilie jetzt oder später verkaufen bzw. vermieten? Dann nutzen Sie unsere über 37jährige Erfahrung in der Vermittlung von Immobilien!
Gerne bewerten wir kostenfrei auch Ihre Immobilie und erstellen Ihnen ganz unverbindlich ein individuelles Vermarktungskonzept.
Einfach anrufen, mailen oder ein Besuch in unserem Immobilienshop Uerdinger Str. 242 in Krefeld-Bockum. Wir sind gerne für Sie da!
Wir wurden 2025 erneut mehrfach ausgezeichnet:
BELLEVUE BEST PROPERTY AGENT 2025
IMMOBILIENSCOUT PREMIUMPARTNER 2025
FOCUS TOP IMMOBILIENMAKLER 2025
IMMOWELT BUSINESSPARTNER 2025
...und auch 2026 wieder:
BELLEVUE BEST PROPERTY AGENT 2026
IMMOBILIENSCOUT EXPERT 2026
FOCUS TOP IMMOBILIENMAKLER
Energieausweis
- Ausweistyp: Bedarf
- Verbrauchskennwert: kWh/(m²*a)
- Endenergiebedarf: 144.50 kWh/(m²*a)
- Gültig bis: 2035-11-30
- Befeuerungsart: Öl
- Baujahr der Heizanlage:
- Energiekennwert: E

















Der guten Ordnung halber möchten wir darauf aufmerksam machen, dass bei Abschluss eines notariellen Kaufvertrages, der durch unseren Nachweis und/oder Vermittlung zustande kommt, der Käufer an uns eine Maklerprovision in Höhe von 3,57% inkl. 19% MwSt. des Kaufpreises zu zahlen hat. Sämtliche Angaben erhielten wir vom Eigentümer. Bitte haben Sie Verständnis dafür, dass wir jede Haftung für die Richtigkeit der Angaben vollständig ausschließen. Außerdem möchten wir darauf hinweisen, dass im Exposé enthaltenes Bildmaterial aufgrund von Fotobearbeitungsprogrammen oder Einsatz von künstlicher Intelligenz von der Realität abweichen kann.