Krefeld-Traar! Charmantes Einfamilien-Reihenhaus mit Wintergarten & sonnigem Grundstück!
Daten zur Immobilie
- Objekt-Nr.5390
- Ort47802 Krefeld / Traar
- ObjektartReihenmittel
- Baujahr1968
- Grundstücksfläche239.00 m²
- Wohnfläche122.00 m²
- Kaufpreis 379.000,- €
Objektbeschreibung
Willkommen in einer der beliebtesten Wohnlagen von Krefeld-Traar!
Dieses hübsche Einfamilien-Reihenhaus wurde im Jahre 1968 in massiver und qualitativ hochwertiger Massivbauweise mit Vollunterkellerung erstellt.
Von den Eigentümern über viele Jahre hinweg sehr liebevoll gepflegt, präsentiert sich das Haus heute als idealer Startpunkt für Familien, die eine ruhige und grüne Umgebung suchen. Durch die geschützte Lage in dritter Reihe einer kaum befahrenen Nebenstraße können Kinder unbeschwert draußen spielen. Ein Spielplatz direkt hinter dem Grundstück sorgt zusätzlich für ein familienfreundliches Umfeld.
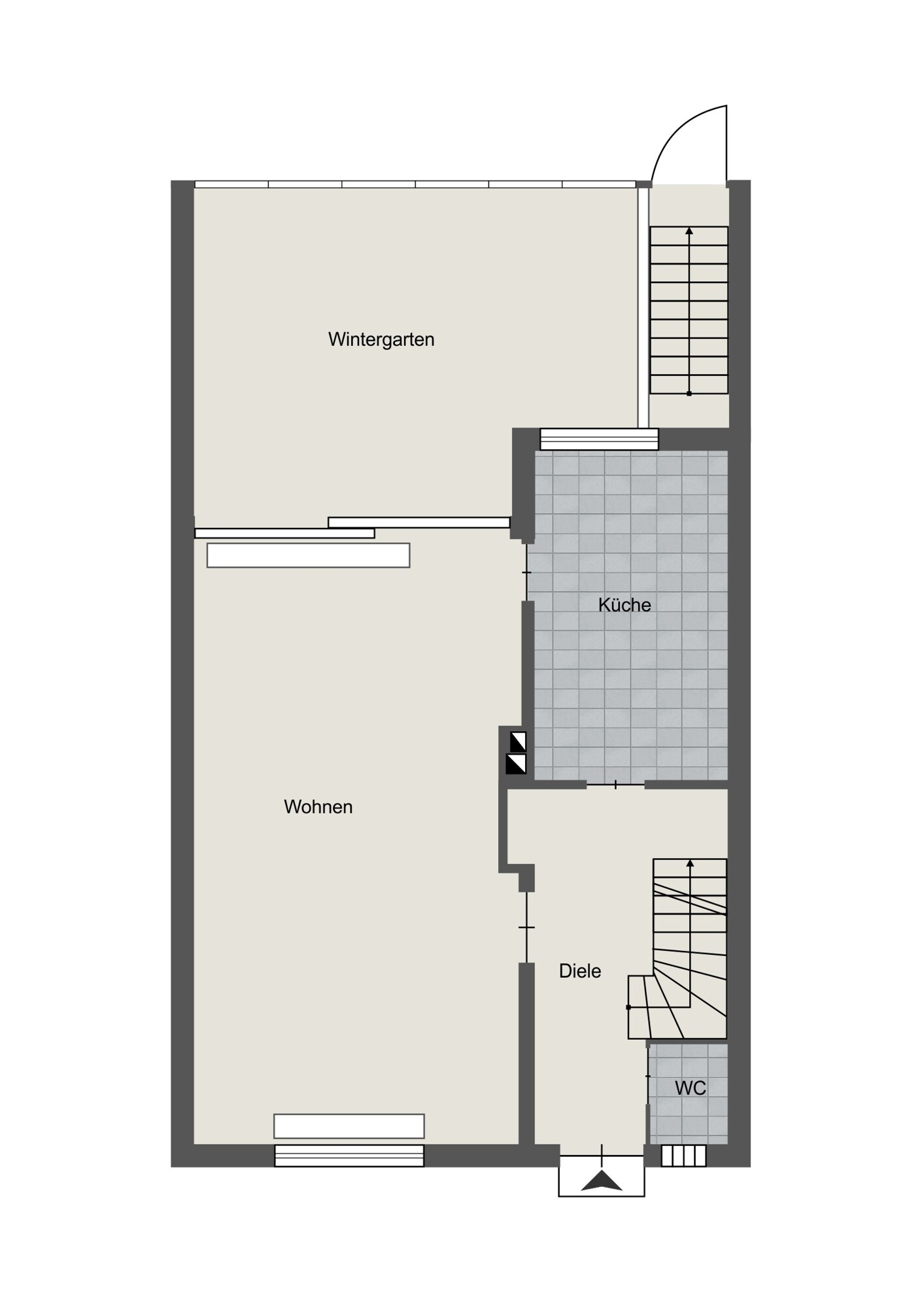
Die Immobilie bietet rund 120 m² durchdacht geschnittene Wohnfläche. Der großzügige Wohn- und Essbereich ist dank großer Fenster angenehm hell und öffnet sich zum sonnigen Garten. 2004 wurde das Haus um einen vollverglasten Wintergarten mit Fußbodenheizung erweitert – ein Raum, der zu jeder Jahreszeit ein besonderes Wohngefühl und einen wunderschönen Blick ins Grüne bietet. Der liebevoll angelegte Garten mit optimaler Süd-West-Ausrichtung lädt zu gemütlichen Stunden, zum Spielen oder einfach zum Entspannen ein.
Die Küche ist aktuell vom Wohnbereich getrennt, könnte aber mit überschaubarem Aufwand geöffnet werden, um einen modernen, offenen Lebensmittelpunkt zu schaffen. Ein Tageslicht-Gäste-WC komplettiert das Erdgeschoss.
Im Obergeschoss stehen drei gut nutzbare Schlafzimmer sowie ein zeitgemäßes Tageslichtbad mit komfortabler Dusche zur Verfügung. Da beide Etagen als Vollgeschosse ausgeführt sind, profitieren Sie von geraden Wänden ohne Dachschrägen – ein großer Vorteil bei der Einrichtung.
Der Vollkeller bietet reichlich zusätzliche Fläche für Vorrat, Hobbys oder Stauraum. Eine Garage mit elektrischem Torantrieb gehört ebenfalls zum Haus.
Ein gepflegtes Zuhause mit solider Grundsubstanz und viel Potenzial – perfekt für Familien, die in Krefeld-Traar ihren neuen Lebensmittelpunkt schaffen möchten!
Ausstattung
- perfekte Familien-Wohnlage in Krefeld-Traar!
- familiengerechte Grundrissgestaltung mit 3 Schlafzimmern
- geräumiger Wohn-/Essbereich mit großen Fensterelementen
- vollverglaster Wintergarten mit Fußbodenheizung
- wunderschön angelegter Sonnengarten
- Gäste-WC mit Tageslichtfenster
- modernes Duschbad mit Tageslichtfenster
- vollunterkellert mit viel Platz für StauHobby und Lagerfläche
- Öl-Zentralheizung von 1994
- Einzelgarage mit elektrischem Torantrieb
- uvm.!
Grundrisse
Lage
Der Krefelder Stadtteil Traar zählt seit Jahren zu den beliebtesten Wohnlagen der Stadt.
Durch die schnelle Erreichbarkeit der Autobahn sowie mehreren Busverbindungen in der Umgebung ist der Stadtteil verkehrstechnisch hervorragend angebunden. Erholungsgebiete wie der Egelsberg oder der Elfrather See liegen nur wenige Minuten entfernt, ebenso zwei Golfanlagen, die das Freizeitangebot abrunden.
Traar besticht durch sein gepflegtes, überwiegend von Einfamilienhäusern geprägtes Umfeld und seine hohe Wohnqualität. Einkaufsmöglichkeiten des täglichen Bedarfs, eine Grundschule, Kindertagesstätten sowie verschiedene Sportvereine lassen sich bequem zu Fuß oder mit dem Fahrrad erreichen. Die Infrastruktur ist umfassend und macht das Leben hier besonders angenehm.
Ein Wohnort, an dem man sich sofort wohlfühlt!
Sonstiges
Weitere interessante Angebote: WWW.KERSTING-IMMOBILIEN.DE
Sie möchten Ihre Immobilie jetzt oder später verkaufen bzw. vermieten? Dann nutzen Sie unsere über 36jährige Erfahrung in der Vermittlung von Immobilien!
Gerne bewerten wir kostenfrei auch Ihre Immobilie und erstellen Ihnen ganz unverbindlich ein individuelles Vermarktungskonzept.
Einfach anrufen, mailen oder ein Besuch in unserem Immobilienshop Uerdinger Str. 242 in Krefeld-Bockum. Wir sind gerne für Sie da!
Wir wurden 2024 erneut mehrfach ausgezeichnet:
BELLEVUE BEST PROPERTY AGENT 2024
IMMOBILIENSCOUT PREMIUMPARTNER 2024
FOCUS TOP IMMOBILIENMAKLER 2024
IMMOWELT BUSINESSPARTNER 2024
...und auch 2025 wieder:
BELLEVUE BEST PROPERTY AGENT 2025
IMMOBILIENSCOUT EXPERT 2025
FOCUS TOP IMMOBILIENMAKLER
IMMOWELT BUSINESSPARTNER
Energieausweis
- Ausweistyp: Bedarf
- Verbrauchskennwert: kWh/(m²*a)
- Endenergiebedarf: 134.30 kWh/(m²*a)
- Gültig bis: 2035-08-25
- Befeuerungsart: Öl
- Baujahr der Heizanlage: 1968
- Energiekennwert: E
















Der guten Ordnung halber möchten wir darauf aufmerksam machen, dass bei Abschluss eines notariellen Kaufvertrages, der durch unseren Nachweis und/oder Vermittlung zustande kommt, der Käufer an uns eine Maklerprovision in Höhe von 3,57% inkl. 19% MwSt. des Kaufpreises zu zahlen hat. Sämtliche Angaben erhielten wir vom Eigentümer. Bitte haben Sie Verständnis dafür, dass wir jede Haftung für die Richtigkeit der Angaben vollständig ausschließen. Außerdem möchten wir darauf hinweisen, dass im Exposé enthaltenes Bildmaterial aufgrund von Fotobearbeitungsprogrammen oder Einsatz von künstlicher Intelligenz von der Realität abweichen kann.