Krefeld: teilmodernisierter Doppelhausklassiker mit Wintergarten, Garage und Ausbaupotenzial!
Daten zur Immobilie
- Objekt-Nr.5408
- Ort47805 Krefeld / Dießem/Lehmheide
- ObjektartDoppelhaushälfte
- Baujahr1983
- Grundstücksfläche366.00 m²
- Wohnfläche134.00 m²
- Kaufpreis 398.000,- €
Objektbeschreibung
Diese ansprechende Einfamilien-Doppelhaushälfte befindet sich in ruhiger und familienfreundlicher Wohnlage von Krefeld-Dießem. Im Jahre 1983 in massiver Bauweise und guter Qualität erstellt, wurde diese Immobilie von den Eigentümern über die Jahre liebevoll gepflegt.
Mit einer Wohnfläche von ca. 134 m² erwartet Sie hier ein Doppelhausklassiker, der Platz für die ganze Familie bietet. Hell und freundlich gestaltet, ist vor allem der schöne Wohnraum mit Zugang in den modernen Wintergarten und tollem Blick in den Garten ein Hingucker. Die großen bodentiefen Fensterelemente sorgen für schönen Lichteinfall. Die Küche, aktuell noch separat gelegen, könnte mit einem Durchbruch geöffnet werden. So entsteht ein moderner und offener Wohnbereich - Ihr neuer Familien-Mittelpunkt!
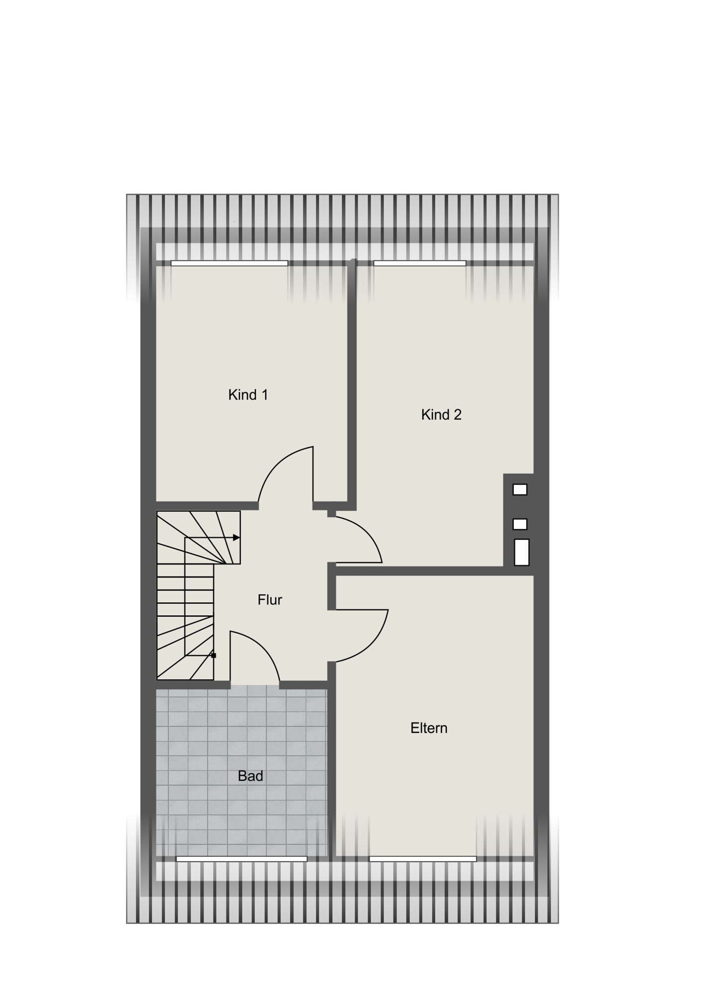
Im Obergeschoss befinden sich das Badezimmer mit Tageslicht, sowie drei Schlafzimmer guter Größe. Über das durchgehende Treppenhaus gelangen Sie auf den Dachboden, welcher in der Vergangenheit mit einfachen Mitteln ausgebaut wurde. Denkbar wäre der Einbau eines Fensters auf der Giebelseite und Ihnen steht ein weiterer großzügiger Raum zur Verfügung!
Auch der Kellerbereich kann sich sehen lassen. Insgesamt in einem gutem Zustand, stehen Ihnen hier die üblichen Hobby- und Lagerflächen sowie ein Wasch-/Trockenraum zur Verfügung. Abgerundet durch eine direkt am Haus gelegene Garage, erwartet Sie hier ein tolles Immobilienangebot mit äußerst viel Potential in familienfreundlicher Wohnlage!
Unser Resümee: Eine ansprechende Einfamilien-Doppelhaushälfte in perfekter Wohnlage von Krefeld mit netter Nachbarschaft. Trotz der soliden Bauweise und gefragten Raumaufteilung bleibt eine Modernisierung nicht aus!
Gerne informieren wir Sie näher über dieses interessante Immobilienangebot und freuen uns auf Ihre Kontaktaufnahme.
Ausstattung
- ruhige Wohnlage mit netter Nachbarschaft
- liebevoll gepflegte Immobilie
- gute Grundrissgestaltung
- Tageslichtbad im Obergeschoss
- moderner Wintergarten
- große Garage, direkt am Haus Außenstellplatz
- neuwertige Haustür und neue Kunststofffenster aus dem Jahr 2019
- elektrische Rollläden
- elektrisches Sektional-Garagentor
- Brunnenpumpe für Gartenbewässerung
- uvm.!
Grundrisse
Lage
Krefeld-Dießem: Im Süden von Krefeld gelegen, angrenzend an den Stadtteil Fischeln, ist die Lage bekannt für seine ruhige Wohnatmosphäre und bietet eine Balance aus urbaner Nähe und Grünflächen.
In Dießem finden Sie eine solide Ausstattung für den Alltag: Einkaufsmöglichkeiten, medizinische Versorgung und eine excellente Anbindung an die U76 Richtung Düsseldorf und die Nähe zur Autobahn zeichnen diesen ruhigen und familienfreundlichen Stadtteil aus!
Sonstiges
Weitere interessante Angebote: WWW.KERSTING-IMMOBILIEN.DE
Sie möchten Ihre Immobilie jetzt oder später verkaufen bzw. vermieten? Dann nutzen Sie unsere über 37jährige Erfahrung in der Vermittlung von Immobilien!
Gerne bewerten wir kostenfrei auch Ihre Immobilie und erstellen Ihnen ganz unverbindlich ein individuelles Vermarktungskonzept.
Einfach anrufen, mailen oder ein Besuch in unserem Immobilienshop Uerdinger Str. 242 in Krefeld-Bockum. Wir sind gerne für Sie da!
Wir wurden 2025 erneut mehrfach ausgezeichnet:
BELLEVUE BEST PROPERTY AGENT 2025
IMMOBILIENSCOUT PREMIUMPARTNER 2025
FOCUS TOP IMMOBILIENMAKLER 2025
...und auch 2026 wieder:
BELLEVUE BEST PROPERTY AGENT 2026
IMMOBILIENSCOUT Gold Partner 2026
FOCUS TOP IMMOBILIENMAKLER
Energieausweis
- Ausweistyp: Verbrauch
- Verbrauchskennwert: 76.48 kWh/(m²*a)
- Endenergiebedarf: kWh/(m²*a)
- Gültig bis: 2036-03-02
- Befeuerungsart: Gas
- Baujahr der Heizanlage: 2018
- Energiekennwert: C

















Der guten Ordnung halber möchten wir darauf aufmerksam machen, dass bei Abschluss eines notariellen Kaufvertrages, der durch unseren Nachweis und/oder Vermittlung zustande kommt, der Käufer an uns eine Maklerprovision in Höhe von 3,57% inkl. 19% MwSt. des Kaufpreises zu zahlen hat. Sämtliche Angaben erhielten wir vom Eigentümer. Bitte haben Sie Verständnis dafür, dass wir jede Haftung für die Richtigkeit der Angaben vollständig ausschließen. Außerdem möchten wir darauf hinweisen, dass im Exposé enthaltenes Bildmaterial aufgrund von Fotobearbeitungsprogrammen oder Einsatz von künstlicher Intelligenz von der Realität abweichen kann.