KR-Linn: Doppelhaushälfte mit großzügiger Wohnfläche, Sonnengrundstück und Garage - Nähe Burg-Linn!
Daten zur Immobilie
- Objekt-Nr.5415
- Ort47809 Krefeld-Linn
- ObjektartDoppelhaushälfte
- Baujahr1973
- Grundstücksfläche263.00 m²
- Wohnfläche161.76 m²
- Kaufpreis Erfolgreich vermarktet!
Objektbeschreibung
Ein wahres Raumwunder in toller, familienfreundlicher Wohnlage mit bester Infrastruktur!
Diese Einfamilien-Doppelhaushälfte dürfte Sie bereits anhand der großzügigen "Eckdaten" begeistern: ca. 160m² sehr gut aufgeteilte Wohnfläche und ein schönes Sonnengrundstück mit zahlreichen Gestaltungsmöglichkeiten!
Gelegen in einer ruhigen Straße und in netter Nachbarschaft, erwartet Sie hier ein solides Einfamilienhaus mit unglaublich viel Potenzial. Im Jahre 1973 in massiver Bauweise mit Vollunterkellerung erstellt, wurde die Immobilie von den Eigentümern bis heute stets liebevoll gepflegt und gut instandgehalten. Nutzen Sie die Chance und verhelfen Sie diesem charmanten Haus zu neuem Glanz mit modernen Elementen!
Der Grundriss wurde sehr familiengerecht gestaltet und entspricht grundsätzlich nach wie vor heutigen Ansprüchen. Rechter Hand befindet sich das Wohn- und Esszimmer mit Kaminofen, der gemütliche Atmosphäre gerade in der kalten Jahreszeit verspricht. Die angrenzende, überdachte Terrasse wird im Sommer zum erweiterten Wohnzimmer - ein bisher gepflasterter Gartenbereich lässt sich ohne weiteres wieder in Rasenfläche umwandeln und bietet Platz für kreative Gartenplanung!
Die Küche liegt zur Straße und ist bereits durch einen Rundbogen offen und modern gehalten. Sicherlich besteht auch hier die Möglichkeit, die Wand zu öffnen und die Küche noch großzügiger zu gestalten. Entscheiden Sie selbst... Darüber hinaus überzeugt das Erdgeschoss mit einem gepflegten Gäste-WC mit Tageslichtfenster und einladendem Flur.
Das Obergeschoss stellt zukünftig die Schlafetage dar. Vier geräumige Schlafzimmer und ein Badezimmer mit Tageslichtfenster - klassisch neutral gehalten - runden diese Etage ab. Über eine bereits fest installierte Treppe erreichen Sie den überraschend großen Spitzboden. Hier befinden sich noch zwei weitere, ausgebaute Zimmer sowie ein kleines Duschbad im Retro-Stil. Viel Platz für die ganze Familie!
Direkt am Haus befindet sich eine Einzelgarage, die dieses interessante Angebot dann perfekt macht.
Wir haben Ihr Interesse geweckt? Auf schriftliche Anfrage übersenden wir Ihnen gerne weiter Informationen.
Ausstattung
- Einfamilien-Doppelhaushälfte mit ca. 160 m² Wohnfläche
- schönes sonniges Eckgrundstück
- Ruhige Wohnlage in familienfreundlicher Nachbarschaft
- Massive Bauweise mit Vollunterkellerung (Baujahr 1973)
- Helles Wohnund Esszimmer mit Kaminofen
- Großzügige Küche
- Obergeschoss mit drei geräumigen Schlafzimmern
- zwei weitere Zimmer Duschbad im Dachgeschoss
- Badezimmer mit Tageslichtfenster
- Einzelgarage direkt am Haus
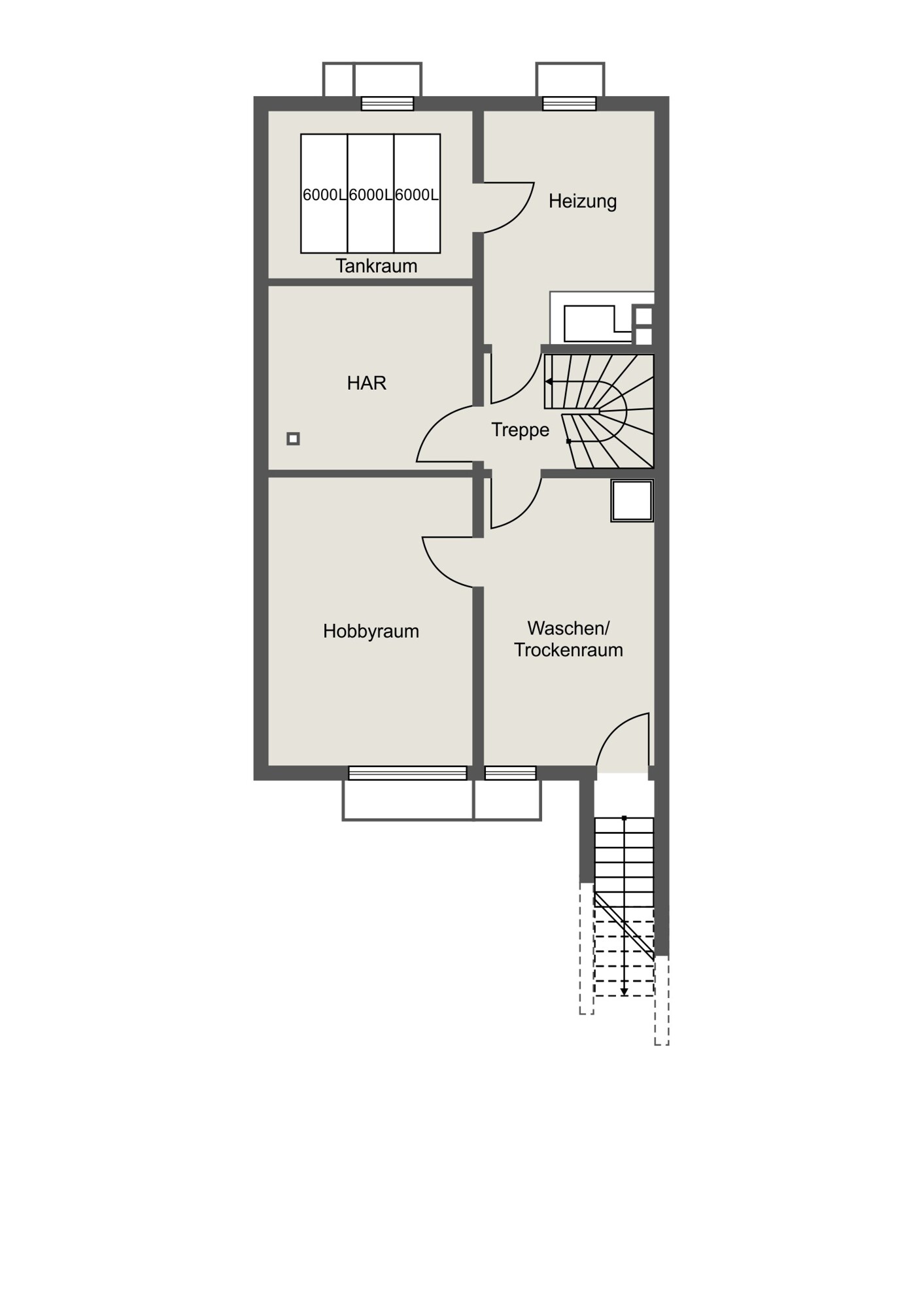
- Ältere Öl-Zentralheizung
- uvm.!
Grundrisse
Lage
Der Wohnort Linn ist ein malerischer Stadtteil von Krefeld, der besonders durch seine historische Altstadt und die beeindruckende Burg Linn bekannt ist. Die Burg Linn ist vom Standort der Immobilie aus sogar fußläufig erreichbar!
Der Stadtteil ist gut ausgestattet mit Schulen, Kindergärten und verschiedenen Einkaufsmöglichkeiten. Die insgesamte Infrastruktur ist hervorragend!
Linn besticht durch eine besondere Wohnqualität, die durch die Kombination aus historischem Charme, grünen Parks und modernen Annehmlichkeiten entsteht.
Insgesamt bietet Krefeld-Linn eine idyllische und historisch reiche Umgebung, die sowohl für Geschichtsinteressierte als auch für Familien und Naturliebhaber ein attraktiver Wohnort ist.
Sonstiges
Weitere interessante Angebote: WWW.KERSTING-IMMOBILIEN.DE
Sie möchten Ihre Immobilie jetzt oder später verkaufen bzw. vermieten? Dann nutzen Sie unsere über 37jährige Erfahrung in der Vermittlung von Immobilien!
Gerne bewerten wir kostenfrei auch Ihre Immobilie und erstellen Ihnen ganz unverbindlich ein individuelles Vermarktungskonzept.
Einfach anrufen, mailen oder ein Besuch in unserem Immobilienshop Uerdinger Str. 242 in Krefeld-Bockum. Wir sind gerne für Sie da!
Wir wurden 2025 erneut mehrfach ausgezeichnet:
BELLEVUE BEST PROPERTY AGENT 2025
IMMOBILIENSCOUT PREMIUMPARTNER 2025
FOCUS TOP IMMOBILIENMAKLER 2025
...und auch 2026 wieder:
BELLEVUE BEST PROPERTY AGENT 2026
IMMOBILIENSCOUT Gold Partner 2026
FOCUS TOP IMMOBILIENMAKLER
Energieausweis
- Ausweistyp: Bedarf
- Verbrauchskennwert: kWh/(m²*a)
- Endenergiebedarf: 219.80 kWh/(m²*a)
- Gültig bis: 2036-03-09
- Befeuerungsart: Öl
- Baujahr der Heizanlage:
- Energiekennwert: G

























Der guten Ordnung halber möchten wir darauf aufmerksam machen, dass bei Abschluss eines notariellen Kaufvertrages, der durch unseren Nachweis und/oder Vermittlung zustande kommt, der Käufer an uns eine Maklerprovision in Höhe von 3,57% inkl. 19% MwSt. des Kaufpreises zu zahlen hat. Sämtliche Angaben erhielten wir vom Eigentümer. Bitte haben Sie Verständnis dafür, dass wir jede Haftung für die Richtigkeit der Angaben vollständig ausschließen. Außerdem möchten wir darauf hinweisen, dass im Exposé enthaltenes Bildmaterial aufgrund von Fotobearbeitungsprogrammen oder Einsatz von künstlicher Intelligenz von der Realität abweichen kann.