Familiengück in Krefeld-Fischeln! Neuwertige Einfamilien-Doppelhaushälfte vor den Toren Düsseldorfs!
Daten zur Immobilie
- Objekt-Nr.5417
- Ort47807 Krefeld / Fischeln
- ObjektartDoppelhaushälfte
- Baujahr2009
- Grundstücksfläche294.00 m²
- Wohnfläche136.00 m²
- Kaufpreis 610.000,- €
Objektbeschreibung
Ein Traumobjekt in bester Wohnlage von Krefeld-Fischeln – unmittelbar an der Grenze zu Meerbusch und mit exzellenter Anbindung nach Düsseldorf!
Diese top gepflegte und neuwertige Einfamilien-Doppelhaushälfte aus dem Baujahr 2009 überzeugt durch hochwertige Bauweise, moderne Ausstattung und ein durchdachtes Raumkonzept. Mit rund 135 m² Wohnfläche, schön angelegtem Garten und übergroßer Garage präsentiert sich diese Immobilie als äußerst attraktives Kaufangebot für anspruchsvolle Paare oder Familien.
Die Wohnfläche ist hervorragend aufgeteilt und schafft eine gelungene Balance zwischen Großzügigkeit und Funktionalität. Besonders einladend ist der offen gestaltete Wohn- und Essbereich mit integrierter Küche, der als zentraler Treffpunkt des Hauses fungiert. Große bodentiefe Schiebetüren öffnen den Raum zum hübsch gestalteten Garten mit großzügiger Sonnenterrasse und sorgen zugleich für ein lichtdurchflutetes Ambiente. Hier genießen Sie entspannte Stunden im Freien und einen harmonischen Übergang zwischen Innen- und Außenbereich – ein kleines privates Gartenparadies in ruhiger, gewachsener Nachbarschaft.
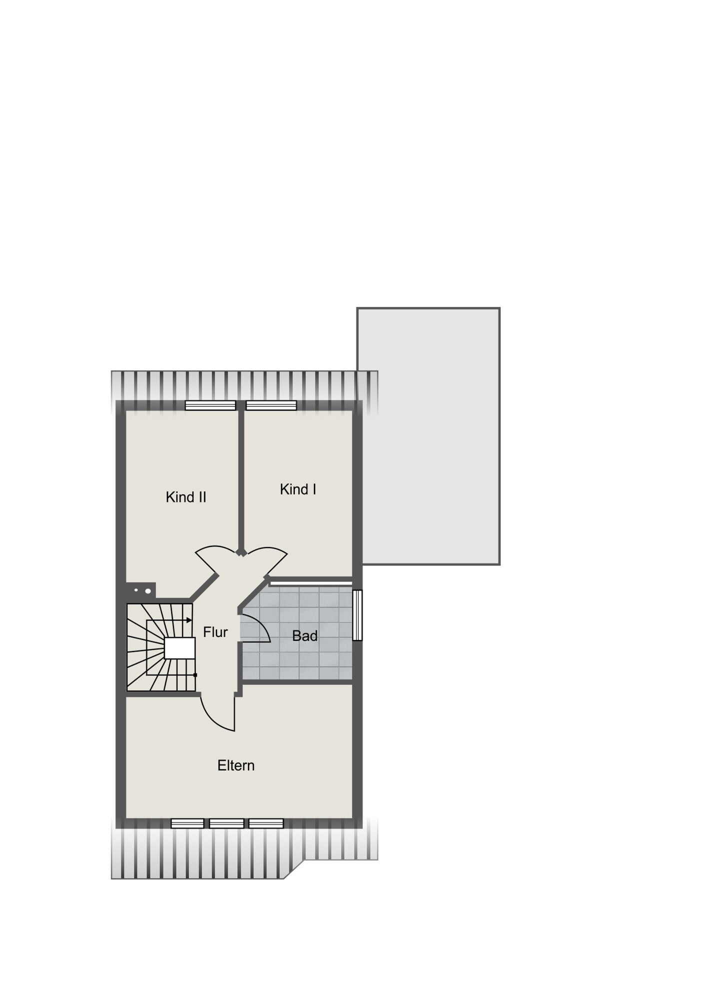
In solider Massivbauweise mit weißer Wanne errichtet, überzeugt das Haus auch technisch durch Qualität und Nachhaltigkeit. Das Erdgeschoss bietet neben dem großzügigen Wohnbereich eine geräumige Eingangsdiele mit praktischen Einbauschränken sowie ein modernes Gäste-WC. Im Obergeschoss erwarten Sie drei gut geschnittene Schlafzimmer und ein stilvolles Tageslichtbad mit bodengleicher Dusche und Badewanne – zeitlos gestaltet und komfortabel ausgestattet.
Das ausgebaute Dachgeschoss beherbergt ein großzügiges Arbeits- oder Gästezimmer mit integrierter Klimaanlage und schafft damit eine zusätzliche, vielseitig nutzbare Ebene – ideal als Homeoffice, Rückzugsbereich oder Gästesuite. Der voll unterkellerte Bereich bietet weitere Nutzflächen mit Hobbyraum, Abstellräumen und separatem Waschraum und erweitert das Platzangebot erheblich.
Eine wertvolle Ergänzung stellt die übergroße Garage mit elektrischem Tor und direktem Gartenzugang dar – komfortabel, praktisch und vielseitig nutzbar. Auch energetisch ist die Immobilie gut aufgestellt: Fußbodenheizung im Erd- und Obergeschoss sorgt für behagliche Wärme, während die installierte Photovoltaikanlage mit Speicher langfristige Effizienz und Zukunftssicherheit bietet.
Insgesamt handelt es sich um eine äußerst gepflegte Immobilie mit überzeugender Ausstattung, idealer Raumaufteilung und hervorragender Lagequalität – ein Zuhause, das Wohnkomfort, Wertbeständigkeit und Lebensqualität in besonderer Weise vereint.
Gerne beraten wir Sie persönlich zu diesem attraktiven Angebot und freuen uns auf Ihre Anfrage.
Ausstattung
- hervorragende Wohnlage in Krefeld Fischeln
- beste Infrastruktur und exzellente Anbindung
- qualitativ hochwertige Massiv-Bauweise
- Keller in weißer Wanne erstellt
- modernes Gäste-WC mit Tageslichtfenster
- offener Küchenbereich inkl. hochwertiger Einbauküche
- 3 geräumige Schlafzimmer im Obergeschoss
- großzügiges Badezimmer mit Dusche, Wanne und Tageslichtfenster
- großes Arbeits-/Schlafoder Gästezimmer im Dachgeschoss mit Klimaanlage
- moderne Gas-Brennwerttherme aus dem Jahr 2014 mit Warmwasserspeicher
- Fußbodenheizung in Erdund Obergeschoss
- hübsch angelegter Gartenbereich
- weitläufige Sonnenterrasse
- übergroße Einzelgarage mit direktem Gartenzugang
- Wallbox
- Photovoltaik Anlage 8,3 kWp mit ca. 8 kWh Speicher
- uvm.!
Grundrisse
Lage
Die Immobilie befindet sich in besonders gefragter Wohnlage im beliebten Krefelder Stadtteil Fischeln – einer der attraktivsten und zugleich familienfreundlichsten Adressen im Krefelder Süden. Das Umfeld ist geprägt von gepflegten Wohnhäusern, gewachsener Nachbarschaft und einer angenehm ruhigen Atmosphäre, die ein entspanntes und sicheres Wohnen ermöglicht. Hier verbinden sich Wohnqualität, Infrastruktur und naturnahe Umgebung auf ideale Weise.
Besonders geschätzt wird diese Lage aufgrund ihrer hervorragenden Verkehrsanbindung: Die nahegelegenen Autobahnen sowie gut erreichbare Hauptverkehrsachsen ermöglichen eine schnelle Verbindung in Richtung Düsseldorf, Meerbusch, Neuss und in die Krefelder Innenstadt. Auch der öffentliche Nahverkehr ist bequem erreichbar und gewährleistet eine unkomplizierte Mobilität im Alltag.
Alle Einrichtungen des täglichen Bedarfs befinden sich in komfortabler Nähe. Einkaufsmöglichkeiten, Bäckereien, Ärzte, Apotheken, Cafés und Restaurants sind schnell erreichbar und machen den Standort besonders alltagstauglich. Familien profitieren zudem von einem sehr guten Angebot an Kindergärten, Schulen und Freizeitmöglichkeiten in der Umgebung.
Für Erholung und sportliche Aktivitäten bieten sich zahlreiche Grünflächen, Spazierwege und Naherholungsgebiete im direkten Umfeld an. Ob Joggen, Radfahren oder entspannte Spaziergänge – hier genießen Sie naturnahes Wohnen, ohne auf die Vorzüge urbaner Infrastruktur verzichten zu müssen.
Insgesamt handelt es sich um eine Wohnlage, die durch ihre ruhige, gepflegte Umgebung, ihre hervorragende Anbindung und ihre gewachsene Struktur überzeugt und damit eine ideale Kombination aus Lebensqualität, Komfort und Wertbeständigkeit bietet.
Sonstiges
Weitere interessante Angebote: WWW.KERSTING-IMMOBILIEN.DE
Sie möchten Ihre Immobilie jetzt oder später verkaufen bzw. vermieten? Dann nutzen Sie unsere über 37jährige Erfahrung in der Vermittlung von Immobilien!
Gerne bewerten wir kostenfrei auch Ihre Immobilie und erstellen Ihnen ganz unverbindlich ein individuelles Vermarktungskonzept.
Einfach anrufen, mailen oder ein Besuch in unserem Immobilienshop Uerdinger Str. 242 in Krefeld-Bockum. Wir sind gerne für Sie da!
Wir wurden 2025 erneut mehrfach ausgezeichnet:
BELLEVUE BEST PROPERTY AGENT 2025
IMMOBILIENSCOUT PREMIUMPARTNER 2025
FOCUS TOP IMMOBILIENMAKLER 2025
...und auch 2026 wieder:
BELLEVUE BEST PROPERTY AGENT 2026
IMMOBILIENSCOUT Gold Partner 2026
FOCUS TOP IMMOBILIENMAKLER
Energieausweis
- Ausweistyp: Verbrauch
- Verbrauchskennwert: 63.12 kWh/(m²*a)
- Endenergiebedarf: kWh/(m²*a)
- Gültig bis: 2036-03-03
- Befeuerungsart: Gas
- Baujahr der Heizanlage:
- Energiekennwert: B


















Der guten Ordnung halber möchten wir darauf aufmerksam machen, dass bei Abschluss eines notariellen Kaufvertrages, der durch unseren Nachweis und/oder Vermittlung zustande kommt, der Käufer an uns eine Maklerprovision in Höhe von 3,57% inkl. 19% MwSt. des Kaufpreises zu zahlen hat. Sämtliche Angaben erhielten wir vom Eigentümer. Bitte haben Sie Verständnis dafür, dass wir jede Haftung für die Richtigkeit der Angaben vollständig ausschließen. Außerdem möchten wir darauf hinweisen, dass im Exposé enthaltenes Bildmaterial aufgrund von Fotobearbeitungsprogrammen oder Einsatz von künstlicher Intelligenz von der Realität abweichen kann.