Wohnen am Schönwasserpark! Einfamilien-Doppelhaushälfte mit Traumgrundstück und viel Potential!
Daten zur Immobilie
- Objekt-Nr.5423
- Ort47809 Krefeld / Oppum
- ObjektartDoppelhaushälfte
- Baujahr1960
- Grundstücksfläche761.00 m²
- Wohnfläche155.00 m²
- Kaufpreis 460.000,- €
Objektbeschreibung
In außergewöhnlich begehrter Wohnlage von Krefeld-Bockum/Oppum, unmittelbar gegenüber dem weitläufigen Schönwasserpark, präsentiert sich diese Einfamilien-Doppelhaushälfte aus dem Jahr 1960 auf einem beeindruckenden Grundstück von rund 761 m². Eine Lage, wie man sie nur selten findet: absolute Ruhe, ein unverbaubarer Blick ins Grüne und Erholung direkt vor der eigenen Haustür.
Schon beim Betreten des Hauses wird deutlich, dass es sich hier um eine Immobilie mit besonderem Raumgefühl handelt. Mit einer Wohnfläche von rund 155 m² und einer äußerst großzügigen Raumaufteilung vermittelt das Haus eher den Charakter eines freistehenden Einfamilienhauses als den einer "klassischen" Doppelhaushälfte. Große Fensterflächen sorgen im Erdgeschoss für ein lichtdurchflutetes Wohnambiente und eröffnen schöne Blickachsen in den Garten und den vor der Haustüre befindlichen Park.
Herzstück des Erdgeschosses ist der beeindruckend große Wohn- und Essbereich, der vielfältige Gestaltungsmöglichkeiten bietet und durch seine Offenheit ein modernes Wohngefühl entstehen lässt. Die separate Küche verfügt über eine angenehme Größe und bietet ausreichend Platz für individuelle Planungsideen. Ein Gäste-WC im Eingangsbereich rundet diese Ebene funktional ab.
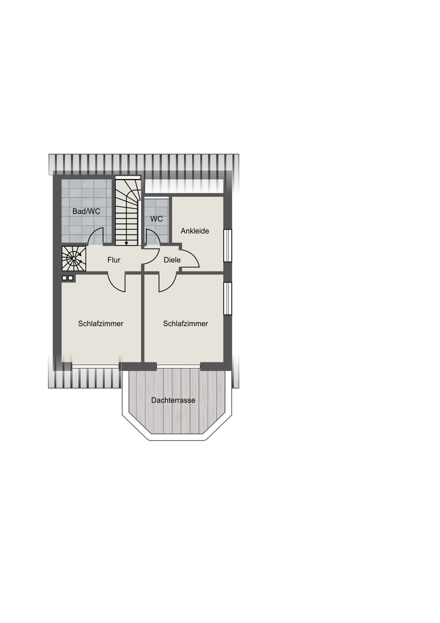
Im Obergeschoss stehen derzeit zwei gut geschnittene Schlafzimmer, ein Badezimmer, ein weiteres, separates, WC und ein Ankleidezimmer zur Verfügung. Das Elternschlafzimmer verfügt zudem über einen großen Balkon mit wundervollem Parkblick. Das Tageslichtbad präsentiert sich im charmanten Retro-Stil der vergangenen Jahrzehnte und wartet darauf, in ein zeitgemäßes Wohlfühlbad verwandelt zu werden. Der wohnlich ausgebaute Spitzboden (Nutzfläche) wurde bislang als weiteres Schlafzimmer genutzt und schafft zusätzliche, flexibel nutzbare Fläche – ideal als Homeoffice, Hobbyraum oder Rückzugsort.
Das Haus ist vollunterkellert und bietet die klassischen Nutz- und Lagerräume sowie ausreichend Platz für Vorräte, Hobbys oder eine Werkstatt. Eine direkt am Haus gelegene Garage vervollständigt das Angebot und sorgt für zusätzlichen Komfort im Alltag.
Über die Jahre wurde die Immobilie von den Eigentümern stets gepflegt und instand gehalten. Dennoch entspricht die Ausstattung in weiten Teilen nicht mehr dem heutigen Zeitgeschmack und auch bauliche Schäden sind vorhanden. Genau hier liegt aber die besondere Chance dieses Angebots: Dieser Rohdiamant wartet auf eine liebevolle Sanierung und Modernisierung und darauf, mit neuen Ideen und frischem Leben gefüllt zu werden. Nutzen Sie die Gelegenheit, Ihre persönlichen Wohnvorstellungen zu verwirklichen und erschaffen Sie sich Ihr ganz eigenes Zuhause in einer der malerischsten Lagen Krefelds.
Ein Haus mit Charakter und außergewöhnlichem Entwicklungspotenzial – ideal für Familien oder Paare mit Platzbedarf, die das Besondere suchen und die Kombination aus Natur, Ruhe und urbaner Nähe zu schätzen wissen.
Ausstattung
- malerische Wohnlage, direkt am Schönwasserpark
- großzügige Raumgestaltung
- wunderbar großes Grundstück
- große, direkt am Haus gelegene Garage
- weitläufiger Wohn-/Essbereich mit Kamin
- zwei Schlafzimmer und Ankleidezimmer im Obergeschoss
- großer Balkon mit traumhaftem Parkblick
- Retro-Bad mit Tageslichtfenster, Dusche und Wanne
- wohnlich ausgebauter Spitzboden (Nutzfläche)
- vollunterkellert
- Öl-Zentralheizung (1981)
Grundrisse
Lage
Die Immobilie befindet sich in einer der besonders gefragten Wohnlagen im Krefelder Stadtteil Oppum und überzeugt vor allem durch ihre außergewöhnlich attraktive Umgebung. Direkt gegenüber erstreckt sich der weitläufige Schönwasserpark – eine der schönsten Grünanlagen der Stadt.
Der Park begeistert mit idyllischen Spazierwegen, altem Baumbestand und einem malerischen See, der zu jeder Jahreszeit einen besonderen Reiz entfaltet. Ob morgendliche Joggingrunde, entspannter Abendspaziergang oder Zeit mit der Familie im Grünen – hier beginnt die Naherholung praktisch vor der Haustür. Die offene, parkähnliche Umgebung verleiht dem Standort ein außergewöhnlich großzügiges und naturnahes Wohngefühl.
Die umliegende Bebauung ist geprägt von gepflegten Ein- und Zweifamilienhäusern in gewachsenem Umfeld. Einkaufsmöglichkeiten für den täglichen Bedarf, Schulen, Kindergärten sowie Ärzte und weitere Dienstleister sind bequem erreichbar. Gleichzeitig sorgt die gute Anbindung an den öffentlichen Nahverkehr sowie die schnelle Erreichbarkeit der Autobahnen A57 und A44 für eine optimale Vernetzung mit der Krefelder Innenstadt, Düsseldorf und dem gesamten Rhein-Ruhr-Gebiet.
Insgesamt verbindet dieser Standort auf ideale Weise naturnahes Wohnen mit urbaner Infrastruktur – eine seltene Kombination, die sowohl Ruhe und Erholung als auch eine hervorragende Erreichbarkeit garantiert.
Sonstiges
Weitere interessante Angebote: WWW.KERSTING-IMMOBILIEN.DE
Sie möchten Ihre Immobilie jetzt oder später verkaufen bzw. vermieten? Dann nutzen Sie unsere über 37jährige Erfahrung in der Vermittlung von Immobilien!
Gerne bewerten wir kostenfrei auch Ihre Immobilie und erstellen Ihnen ganz unverbindlich ein individuelles Vermarktungskonzept.
Einfach anrufen, mailen oder ein Besuch in unserem Immobilienshop Uerdinger Str. 242 in Krefeld-Bockum. Wir sind gerne für Sie da!
Wir wurden 2025 erneut mehrfach ausgezeichnet:
BELLEVUE BEST PROPERTY AGENT 2025
IMMOBILIENSCOUT PREMIUMPARTNER 2025
FOCUS TOP IMMOBILIENMAKLER 2025
...und auch 2026 wieder:
BELLEVUE BEST PROPERTY AGENT 2026
IMMOBILIENSCOUT Gold Partner 2026
FOCUS TOP IMMOBILIENMAKLER
Energieausweis
- Ausweistyp: Bedarf
- Verbrauchskennwert: kWh/(m²*a)
- Endenergiebedarf: 300.07 kWh/(m²*a)
- Gültig bis: 2036-03-18
- Befeuerungsart: Öl
- Baujahr der Heizanlage:
- Energiekennwert: H




















Der guten Ordnung halber möchten wir darauf aufmerksam machen, dass bei Abschluss eines notariellen Kaufvertrages, der durch unseren Nachweis und/oder Vermittlung zustande kommt, der Käufer an uns eine Maklerprovision in Höhe von 3,57% inkl. 19% MwSt. des Kaufpreises zu zahlen hat. Sämtliche Angaben erhielten wir vom Eigentümer. Bitte haben Sie Verständnis dafür, dass wir jede Haftung für die Richtigkeit der Angaben vollständig ausschließen. Außerdem möchten wir darauf hinweisen, dass im Exposé enthaltenes Bildmaterial aufgrund von Fotobearbeitungsprogrammen oder Einsatz von künstlicher Intelligenz von der Realität abweichen kann.