Krefeld-Benrad: Doppelhausklassiker mit Wintergarten und Garage in familienfreundlicher Lage!
Daten zur Immobilie
- Objekt-Nr.5433
- Ort47804 Krefeld / Benrad-Süd
- ObjektartDoppelhaushälfte
- Baujahr1964
- Grundstücksfläche569.00 m²
- Wohnfläche135.30 m²
- Kaufpreis 425.000,- €
Objektbeschreibung
In einer gewachsenen und ruhigen Wohnlage von Krefeld-Benrad, präsentiert sich diese Einfamilien-Doppelhaushälfte aus dem Jahr 1964 auf einem ca. 569 m² großen Sonnen-Grundstück. Die klassische Architektur mit Satteldach, Gauben und zurückhaltender Klinkerfassade fügt sich harmonisch in die Umgebung ein und vermittelt bereits von außen ein Gefühl von Beständigkeit und guter Wohnqualität.
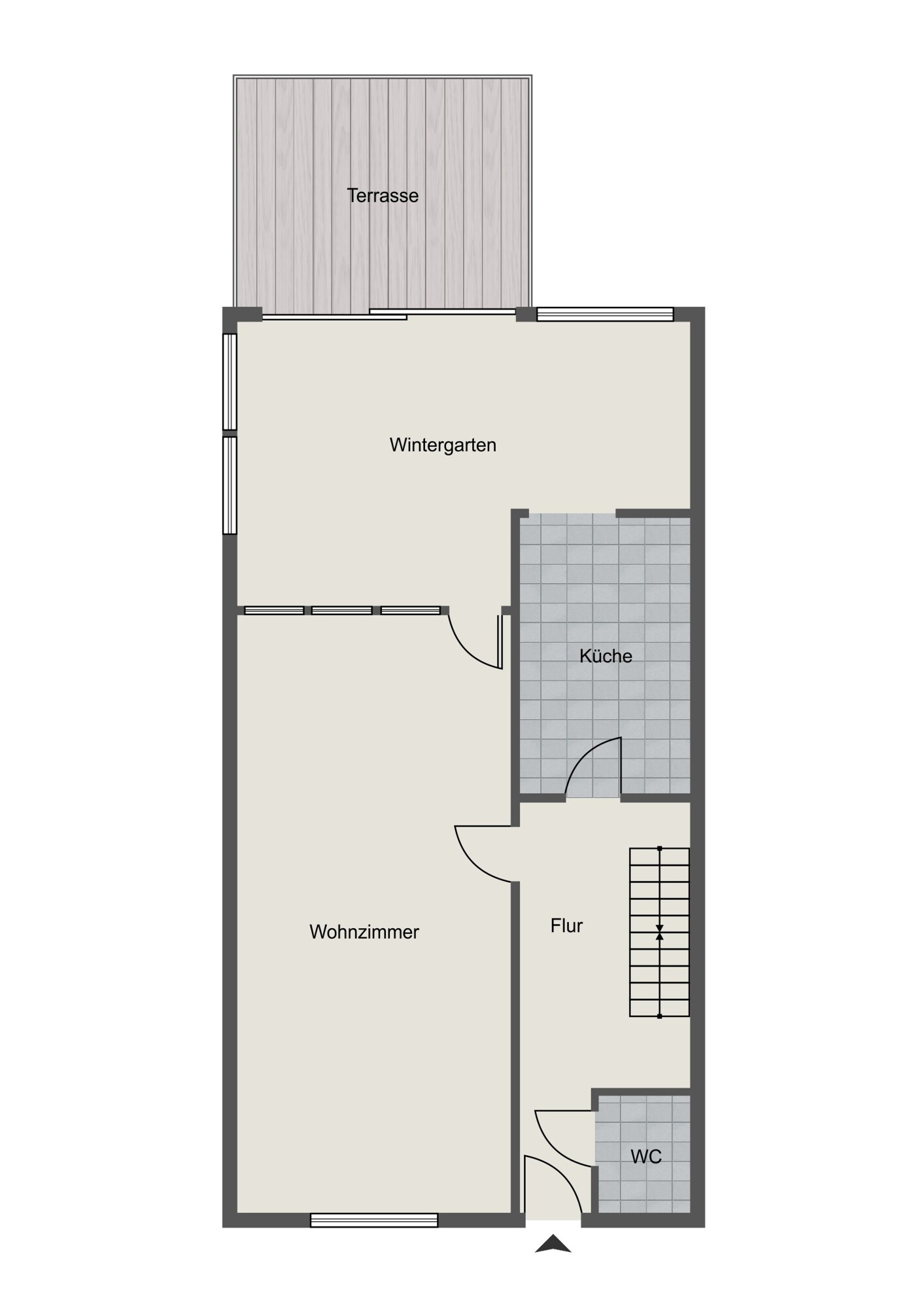
Im Inneren überzeugt die Immobilie durch eine klare und funktionale Grundrissgestaltung. Das Erdgeschoss bildet den zentralen Lebensmittelpunkt des Hauses. Der großzügige Wohnbereich erstreckt sich über die gesamte Hauslänge und wird durch große Fensterflächen von Tageslicht erhellt.
Angrenzend befindet sich die Küche mit direkter Verbindung zum lichtdurchfluteten Wintergarten. Dieser erweitert den Wohnraum auf elegante Weise und schafft einen fließenden Übergang zwischen Innen- und Außenbereich. Von hier aus gelangt man auf die Terrasse und in den Garten, der sich als hübsche grüne Oase mit gewachsenem Baumbestand und geschützten Rückzugsbereichen präsentiert. Die Grundstücksgröße bietet dabei ein ausgewogenes Verhältnis zwischen Pflegeaufwand und Nutzbarkeit.
Im Dachgeschoss setzt sich der wohnliche Charakter des Hauses fort. Mehrere gut geschnittene Zimmer sowie ein Badezimmer bieten vielseitige Nutzungsmöglichkeiten. Die Räume überzeugen durch ihre angenehme Atmosphäre und werden durch große Fensterflächen lichtdurchflutet.
Das Kellergeschoss ergänzt das Haus um vielseitig nutzbare Flächen und bietet ausreichend Raum für Vorrat, Hobby oder Werkstatt.
Insgesamt verfügt die Immobilie über eine Wohnfläche von ca. 135 m² und überzeugt durch ihre klare Struktur sowie die gelungene Verbindung von großzügigem Wohnen und funktionaler Raumaufteilung. Der vorhandene Wintergarten sowie die Terrasse erweitern die Nutzungsmöglichkeiten spürbar und schaffen eine hohe Aufenthaltsqualität.
Der Zustand des Hauses ist gepflegt, entspricht jedoch in Teilen nicht mehr dem heutigen Zeitgeist, sodass sich für den zukünftigen Eigentümer interessante Möglichkeiten zur Modernisierung und individuellen Gestaltung ergeben. Gerade hierin liegt ein besonderer Reiz dieser Immobilie: eine solide Basis aus den 1960er-Jahren, kombiniert mit der Chance, ein Zuhause nach eigenen Vorstellungen neu zu interpretieren.
Gerne beraten wir Sie persönlich zu diesem attraktiven Angebot und freuen uns auf Ihre Anfrage.
Ausstattung
- ruhige und familienfreundliche Wohnlage
- gute Grundrissgestaltung
- 3 Schlafzimmer
- beheizter Wintergarten
- Echtholzparkett im Wohnzimmer
- Sichtbetonboden in Küche und Wintergarten
- separates Gäste-WC
- Kaminofen
- Gas-Heizung von 2022
- Tageslichtbadezimmer mit Badewanne
- optimale Sonnenausrichtung
- pflegeleichter Garten mit Terrasse
- Einzelgarage
- uvm...
Grundrisse
Lage
Krefeld-Benrad ! Umgeben von grünen Feldern, dennoch absolut stadtnah mit bester Verkehrsanbindung in alle Richtungen. Berufspendler haben hier sehr gute Voraussetzungen, das Stadtzentrum Krefeld und der Ortskern von St.Tönis bieten alle Einkaufsmöglichkeiten. Eine wirklich gute Wohnlage.
Sonstiges
Weitere interessante Angebote: WWW.KERSTING-IMMOBILIEN.DE
Sie möchten Ihre Immobilie jetzt oder später verkaufen bzw. vermieten? Dann nutzen Sie unsere über 37jährige Erfahrung in der Vermittlung von Immobilien!
Gerne bewerten wir kostenfrei auch Ihre Immobilie und erstellen Ihnen ganz unverbindlich ein individuelles Vermarktungskonzept.
Einfach anrufen, mailen oder ein Besuch in unserem Immobilienshop Uerdinger Str. 242 in Krefeld-Bockum. Wir sind gerne für Sie da!
Wir wurden 2025 erneut mehrfach ausgezeichnet:
BELLEVUE BEST PROPERTY AGENT 2025
IMMOBILIENSCOUT PREMIUMPARTNER 2025
FOCUS TOP IMMOBILIENMAKLER 2025
...und auch 2026 wieder:
BELLEVUE BEST PROPERTY AGENT 2026
IMMOBILIENSCOUT Gold Partner 2026
FOCUS TOP IMMOBILIENMAKLER
Energieausweis
- Ausweistyp: Bedarf
- Verbrauchskennwert: kWh/(m²*a)
- Endenergiebedarf: 126.50 kWh/(m²*a)
- Gültig bis: 2036-04-07
- Befeuerungsart: Gas
- Baujahr der Heizanlage:
- Energiekennwert: D














Der guten Ordnung halber möchten wir darauf aufmerksam machen, dass bei Abschluss eines notariellen Kaufvertrages, der durch unseren Nachweis und/oder Vermittlung zustande kommt, der Käufer an uns eine Maklerprovision in Höhe von 3,57% inkl. 19% MwSt. des Kaufpreises zu zahlen hat. Sämtliche Angaben erhielten wir vom Eigentümer. Bitte haben Sie Verständnis dafür, dass wir jede Haftung für die Richtigkeit der Angaben vollständig ausschließen. Außerdem möchten wir darauf hinweisen, dass im Exposé enthaltenes Bildmaterial aufgrund von Fotobearbeitungsprogrammen oder Einsatz von künstlicher Intelligenz von der Realität abweichen kann.