Stadtwald! Lichtdurchflutetes Raumwunder für die große Familie mit Garten-Oase in traumhafter Lage
Daten zur Immobilie
- Objekt-Nr.5440
- Ort47800 Krefeld / Bockum
- ObjektartDoppelhaushälfte
- Baujahr1936
- Grundstücksfläche788.00 m²
- Wohnfläche216.00 m²
- Kaufpreis 835.000,- €
Objektbeschreibung
Diese außergewöhnliche Doppelhaushälfte vereint großzügigen Wohnkomfort mit einer traumhaften Gartenoase und befindet sich in einer der begehrtesten Lagen Krefelds - unmittelbar am idyllischen Stadtwald. Auf einem beeindruckenden Grundstück von ca. 788 m² bietet diese Immobilie mit rund 216 m² Wohnfläche ein wahres Raumwunder für die große Familie.
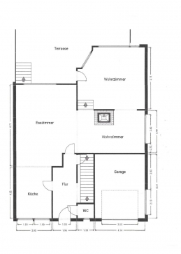
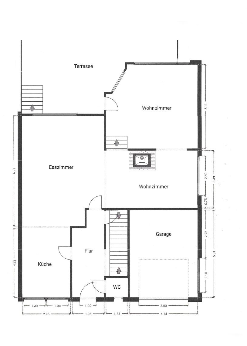
Bereits beim Betreten des Hauses wird die besondere Atmosphäre spürbar: Lichtdurchflutete Räume, eine durchdachte Split-Level-Architektur im Erdgeschoss sowie ein harmonisches Farbkonzept in Weiß- und Cremetönen schaffen ein modernes und zugleich einladendes Wohngefühl. Verschiedene Wohnbereiche gehen fließend ineinander über und bieten somit vielseitige Nutzungsmöglichkeiten – ob als gemütlicher Rückzugsort, stilvoller Empfangsbereich oder offener Lebensmittelpunkt. Das Erdgeschoss wird durch eine zeitlose, offen gestaltete Küche, große Fensterfronten zum Garten hin und einem modernisierten Gäste-WC ergänzt.
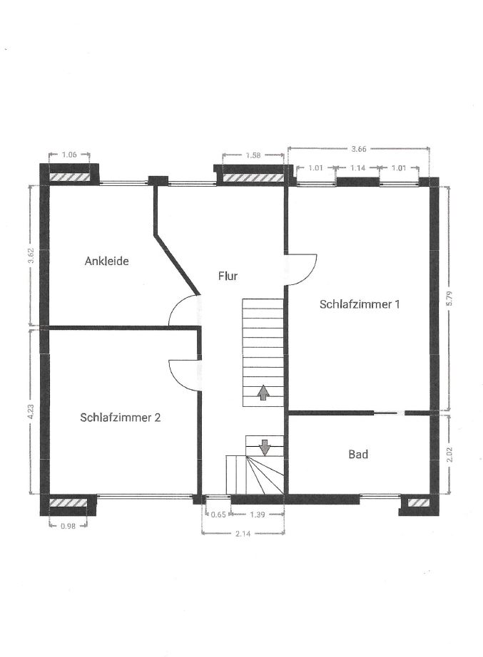
Das Obergeschoss überzeugt mit drei gut geschnittenen Zimmern, die viel Platz für individuelle Nutzung bieten. Ein großzügiger Flurbereich und das offene Treppenhaus sorgen für zusätzliche Offenheit und ausreichend Licht. Besonders hervorzuheben ist das en-suite Badezimmer mit bodentiefer Dusche, das direkt an das Elternschlafzimmer anschließt und für ein hohes Maß an Privatsphäre sorgt.
Im Dachgeschoss erwartet Sie neben einer offenen Galerie ein weiteres Zimmer sowie ein zusätzliches großes Badezimmer mit Eck-Badewanne und Dusche – ideal für Gäste, ältere Kinder oder als separater Arbeits- und Rückzugsbereich.
Der Außenbereich ist ein echtes Highlight dieser Immobilie: Der liebevoll gestaltete Garten bietet mehrere gemütliche Sitzecken, die zum Verweilen einladen, einen gradlinig angelegten Teich sowie ein charmant gemauerter Sitzbereich mit integrierter Outdoorküche und Kamin – perfekt für gesellige Abende mit Familie und Freunden, auch an den kälteren Abenden.
Das ursprünglich im Jahr 1936 erbaute und in 1979 erweiterte Haus wurde über die Jahre gepflegt und präsentiert sich heute als stilvolle Kombination aus klassischer Substanz und modernem Wohnkomfort. Eine im Haus integrierte Garage sowie zusätzliche Stellplätze vor dem Haus für mindestens zwei weitere Fahrzeuge sorgen für praktische Alltagstauglichkeit.
Diese Immobilie bietet eine seltene Gelegenheit, stilvolles Wohnen in erstklassiger Lage mit großzügigem Platzangebot und außergewöhnlichem Ambiente zu verbinden.
Wir haben Ihr Interesse geweckt? Dann freuen wir uns auf Ihre Kontaktaufnahme
Ausstattung
- lichtdurchflutetes Raumwunder auf ca. 216 m² Wohnfläche
- traumhafte Gartenoase auf ca. 788 m² Grundstück
- erstklassige Lage unmittelbar am Krefelder Stadtwald
- offene Grundrissgestaltung mit Split-Level im Erdgeschoss
- zeitlose, offen gestaltete Küche
- zwei Wohnbereiche
- gemütlicher Kaminofen
- große Fensterfronten zum Garten
- vier gut nutzbare Zimmer
- zwei vollwertige Bäder zzgl. Gäste-WC
- ein Badezimmer und Gäste-WC vor ca. 10 Jahren modernisiert (inkl. Leitungen)
- isolierverglaste Holzfenster überwiegend aus 80er, teilweise 90er Jahre
- Einzelgarage zzgl. zwei Außenstellplätze
- neuwertige Hauseingangstür
- Gartenhaus mit Kaminofen und Outdoor-Küche
- Gas-Zentralheizung aus 2007
- solarunterstützte Brauchwasserbereitung
- Erneuerung der Elektroleitungen im Erdgeschoss ca. 1995
- Erneuerung der Elektround Wasserleitungen in Küche ca. 2018
- uvm.
Grundrisse
Lage
Diese charmante Immobilie begeistert durch ihre außergewöhnliche Lage – nur wenige Gehminuten vom idyllischen Krefelder Stadtwald entfernt! Die begehrte Wohnadresse zählt zu den exklusivsten Lagen der Region und ist entsprechend selten auf dem Markt zu finden. Eingebettet in ein hochwertiges Umfeld mit stilvollen Einfamilienhäusern und großzügigen Anwesen bietet diese Adresse eine Wohnqualität, die ihresgleichen sucht.
Die Umgebung überzeugt mit vielfältigen Freizeitmöglichkeiten: Der 9-Loch-Golfplatz, renommierte Tennis- und Hockeyclubs sowie wunderschöne Spazier- und Joggingwege sind bequem erreichbar. Auch die traditionsreiche Galopp-Rennbahn liegt nur einen Steinwurf entfernt und unterstreicht das gehobene Flair des Viertels.
Die Anbindung an das regionale und überregionale Verkehrsnetz ist exzellent – ob Richtung Düsseldorf, Ruhrgebiet oder Innenstadt: Alle Ziele sind schnell erreicht. Zahlreiche Schulen und Kindergärten befinden sich in direkter Nähe und lassen sich sicher mit dem Fahrrad oder zu Fuß erreichen.
Ein Standort, der in puncto Lebensqualität, Wertbeständigkeit und Komfort kaum zu übertreffen ist – einfach erstklassig!
Sonstiges
Weitere interessante Angebote: WWW.KERSTING-IMMOBILIEN.DE
Sie möchten Ihre Immobilie jetzt oder später verkaufen bzw. vermieten? Dann nutzen Sie unsere über 37jährige Erfahrung in der Vermittlung von Immobilien!
Gerne bewerten wir kostenfrei auch Ihre Immobilie und erstellen Ihnen ganz unverbindlich ein individuelles Vermarktungskonzept.
Einfach anrufen, mailen oder ein Besuch in unserem Immobilienshop Uerdinger Str. 242 in Krefeld-Bockum. Wir sind gerne für Sie da!
Wir wurden 2025 erneut mehrfach ausgezeichnet:
BELLEVUE BEST PROPERTY AGENT 2025
IMMOBILIENSCOUT PREMIUMPARTNER 2025
FOCUS TOP IMMOBILIENMAKLER 2025
...und auch 2026 wieder:
BELLEVUE BEST PROPERTY AGENT 2026
IMMOBILIENSCOUT Gold Partner 2026
FOCUS TOP IMMOBILIENMAKLER
Energieausweis
- Ausweistyp: Bedarf
- Verbrauchskennwert: kWh/(m²*a)
- Endenergiebedarf: 116.80 kWh/(m²*a)
- Gültig bis: 2036-04-23
- Befeuerungsart: Gas
- Baujahr der Heizanlage:
- Energiekennwert: D








































Der guten Ordnung halber möchten wir darauf aufmerksam machen, dass bei Abschluss eines notariellen Kaufvertrages, der durch unseren Nachweis und/oder Vermittlung zustande kommt, der Käufer an uns eine Maklerprovision in Höhe von 3,57% inkl. 19% MwSt. des Kaufpreises zu zahlen hat. Sämtliche Angaben erhielten wir vom Eigentümer. Bitte haben Sie Verständnis dafür, dass wir jede Haftung für die Richtigkeit der Angaben vollständig ausschließen. Außerdem möchten wir darauf hinweisen, dass im Exposé enthaltenes Bildmaterial aufgrund von Fotobearbeitungsprogrammen oder Einsatz von künstlicher Intelligenz von der Realität abweichen kann.