Briller Viertel: Sanierte Dachgeschosswohnung mit Balkon & Küche in gepflegter Immobilie in 1A Lage
Daten zur Immobilie
- Objekt-Nr.5244
- Ort42115 Wuppertal
- ObjektartDachgeschoßwohnung
- Zimmer2
- Wohnfläche58.00 m²
- KaltmieteErfolgreich vermarktet!
- Heiz-/Nebenkosten-
Objektbeschreibung
Eine Rarität im Briller Viertel! In bester und vollkommen ruhiger Lage in Elberfeld-West (Brill) befindet sich dieses erstklassige Mietangebot im Dachgeschoss eines höchst attraktiven und gepflegten Wohn-/Geschäftshauses mit 7 Parteien.
Die umfangreich sanierte und mit hochwertigem Vinylboden ausgelegte 2-Zimmer-Wohnung verfügt über eine helle und freundliche Atmosphäre, die durch die vielen großen Fenster verstärkt wird. Der mit integrierter und nagelneuen Einbauküche ausgestattete Wohnraum bietet ausreichend Platz zum Entspannen und verfügt über Zugang zu einem gemütlichen Balkon mit Blick auf attraktive Jugendstilhäuser.
Das zum Hof hin ausgerichtete Schlafzimmer ist ebenfalls hell und freundlich gestaltet und bietet genügend Platz für Bett, Kleiderschrank & Co.
Auch das weiß gestaltete Badezimmer kann sich durchaus sehen lassen. Dieses verfügt über einen Anschluss für Ihre Waschmaschine. Lästiges Treppenlaufen in den Keller bleibt hier also aus.
Sie benötigen Lagerfläche? Exklusive durch Ihre Wohnung gelangen Sie über eine klassische Ausziehtreppe in den isolierten Spitzboden. Hier haben Sie ausreichend Stell- und Lagerfläche.
Wir haben Ihr Interesse geweckt? Dann freuen wir uns auf Ihre schriftliche Kontaktanfrage.
Ausstattung
- umfangreich sanierte 2-Zimmer-Wohnung
- 3. Obergeschoss (Dachgeschoss)
- Vinylboden in Parkettoptik in Wohnund Schlafzimmer sowie Flur
- nagelneue Einbauküche in Wohnbereich
- saniertes Bad mit bodentiefer Dusche
- Waschmaschinenanschluss in der Wohnung
- Balkon mit schönem Blick auf Altbauten
- eigener Lagerraum im Spitzboden
- Gas-Zentralheizung
- dezentrale Warmwasseraufbereitung
- uvm.
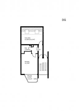
Grundrisse
Lage
Das Wuppertaler Stadtquartier Brill, meist Briller Viertel genannt, ist ein gehobenes Wohn- und Geschäftsgebiet im Westen der Stadt, bekannt für seine prächtigen Villen und historische Architektur. Das Viertel entstand im späten 19. Jahrhundert und ist geprägt von Gründerzeit- und Jugendstilbauten, die von großzügigen Gärten umgeben sind. Es liegt nahe dem Stadtzentrum und bietet eine ruhige, grünere Umgebung mit guten Anbindungen an den öffentlichen Nahverkehr. Auch die Autobahnanbindungen sind ideal gelegen und in 2 Minuten erreicht. Geschäfte des täglichen Bedarfs und Restaurants sind ebenfalls fußläufig erreichbar. Das Briller Viertel zeichnet sich durch eine hohe Lebensqualität und eine gepflegte Atmosphäre aus.
Sonstiges
Weitere interessante Angebote: WWW.KERSTING-IMMOBILIEN.DE
Sie möchten Ihre Immobilie jetzt oder später verkaufen bzw. vermieten? Dann nutzen Sie unsere über 35jährige Erfahrung in der Vermittlung von Immobilien!
Gerne bewerten wir kostenfrei auch Ihre Immobilie und erstellen Ihnen ganz unverbindlich ein individuelles Vermarktungskonzept.
Einfach anrufen, mailen oder ein Besuch in unserem Immobilienshop Uerdinger Str. 242 in Krefeld-Bockum. Wir sind gerne für Sie da!
Wir wurden 2023 erneut mehrfach ausgezeichnet:
BELLEVUE BEST PROPERTY AGENT 2023
IMMOBILIENSCOUT PREMIUMPARTNER 2023
FOCUS TOP IMMOBILIENMAKLER 2023
IMMOWELT BUSINESSPARTNER 2023
...und auch 2024 wieder:
BELLEVUE BEST PROPERTY AGENT 2024
IMMOBILIENSCOUT EXPERT 2024
FOCUS TOP IMMOBILIENMAKLER 2024
IMMOWELT BUSINESSPARTNER 2024
Energieausweis
- Ausweistyp: Verbrauch
- Verbrauchskennwert: 157.30 kWh/(m²*a)
- Endenergiebedarf: kWh/(m²*a)
- Gültig bis: 2029-04-05
- Befeuerungsart: Gas
- Baujahr der Heizanlage:
- Energiekennwert: D












Sämtliche Angaben erhielten wir vom Eigentümer. Bitte haben Sie Verständnis dafür, dass wir jede Haftung für die Richtigkeit der Angaben vollständig ausschließen. Außerdem möchten wir darauf hinweisen, dass im Exposé enthaltenes Bildmaterial aufgrund von Fotobearbeitungsprogrammen oder Einsatz von künstlicher Intelligenz von der Realität abweichen kann.