Randgebiet Düsseldorf: Wunderschöne 2,5 Zimmer-Penthousewohnung mit umlaufender Dachterrasse!
Daten zur Immobilie
- Objekt-Nr.5356
- Ort47269 Duisburg / Rahm
- ObjektartEtagenwohnung
- Zimmer2
- Wohnfläche202.00 m²
- Kaltmiete1.500,- €
- Heiz-/Nebenkosten610,- €
Objektbeschreibung
Eine sehr charmante und außergewöhnliche 2,5-Zimmerwohnung mit umlaufender Sonnen-Terrasse, welche von drei Seiten begehbar ist. Direkt im Randgebiet von Düsseldorf-Angermund!
Diese geräumige, ca.202 m² große "Wohlfühl-Wohnung" mit pfiffigem Grundriss wird Sie sicherlich begeistern! Gelegen im 5. Obergeschoss, welche Sie bequem mit dem Fahrstuhl und nur wenigen Treppenstufen erreichen können, erwartet Sie eine gute Ausstattung sowie schöne Grundrissgestaltung.
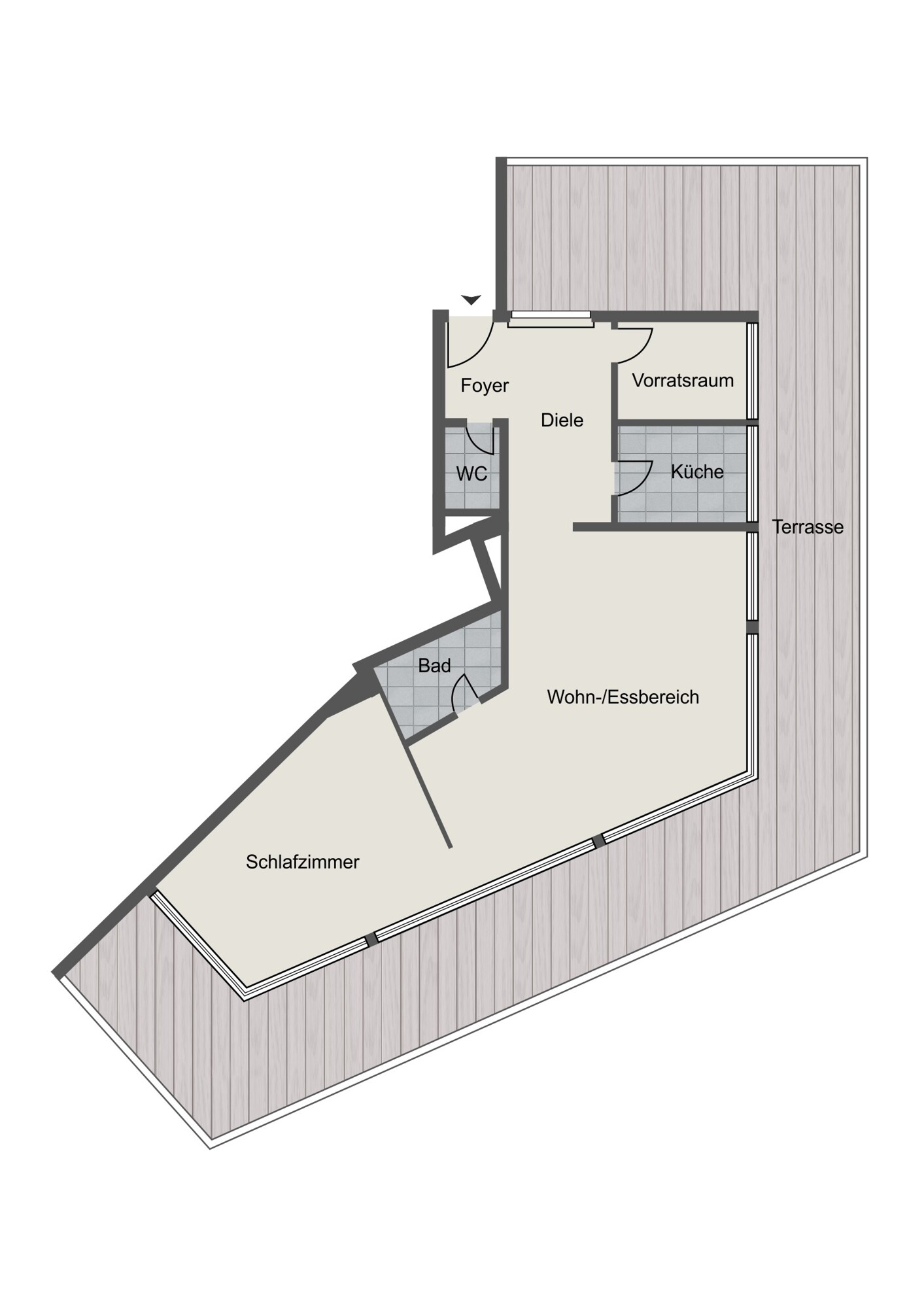
Wenn Sie hereinkommen, werden Sie von der Großzügigkeit der Wohnung in Empfang genommen. Zu Ihrer linken finden Sie einen großen Abstellraum mit Einbauschränken und Anschlüssen für Waschmaschine und Wäschetrockner. Daneben gelegen eine große, hochwertige Einbauküche, welche bereits im Mietpreis inbegriffen ist.
Vor allem der große lichtdurchflutete Raum in Raum Wohn-/Essbereich mit Zugang auf die große Sonnen-Terrasse überzeugt mit vielen bodentiefen Fensterelementen. Südlich ausgerichtet, dürfte die großzügige Terrasse an warmen Tagen sicherlich Ihr "zweites Wohnzimmer" werden. Neben einer einladenden Grillecke bietet sie ausreichend Platz für stilvolle Loungemöbel und lädt zu geselligen Abenden mit Familie und Freunden ein.
Direkt an den Wohn-/Essbereich angegrenzt, befindet sich das Schlafzimmer mit weiterem Terrassen-Zugang und großen bodentiefen Fenster-Elementen. Ein wirklich schöner Schlafraum mit tollem Ausblick ins Grüne...
Weiterhin verfügt diese schöne Wohnung über einen geräumigen Eingangsbereich und ein modernes Duschbad. Abgerundet wird dieses schöne Mietangebot mit einem Kellerraum und zwei PKW-Stellplätzen für monatlich jeweils € 60,- direkt in der unterm Haus liegenden Tiefgarage - ein wertvolles Detail!
Wir haben Ihr Interesse geweckt? Gerne übersenden wir Ihnen auf Anfrage weitere Informationen und die genaue Anschrift. Wir freuen uns auf Sie!
Ausstattung
- sehr gute Wohnlage
- übergroße Sonnen-Terrasse
- Südausrichtung
- viele bodentiefe Fensterelemente
- Jalousie an jedem Fenster
- Teils elektrische Markise
- separates Gäste-WC
- großzügige Einbauschränke
- große, hochwertige Einbauküche
- bodentiefe Dusche
- Anschluss für Waschmaschine und Trockner in der Wohnung
- Treppenhaus/Winterdienst
- Gemeinschaftsnutzung des Gartens
- Kellerraum
- 2 PKW-Stellplätze (monatlich jeweils €60,-)
- uvm.
Grundrisse
Lage
Duisburg-Rahm zählt zu den begehrtesten Wohnlagen der Stadt und überzeugt mit seinem charmanten, grünen Charakter sowie einer hervorragenden Infrastruktur. Geprägt von Einfamilienhäusern, gepflegten Gärten und weitläufigen Grünflächen bietet Rahm eine idyllische Wohnatmosphäre mit hohem Erholungswert. Der Stadtteil liegt im Süden Duisburgs, an der Grenze zu Düsseldorf, und vereint somit das Beste aus zwei Welten: die ruhige, naturnahe Umgebung und die Nähe zu urbanen Zentren.
Besonders hervorzuheben ist die ausgezeichnete Anbindung – sowohl die Autobahn 524 als auch der S-Bahnhof Duisburg-Rahm sorgen für kurze Wege nach Duisburg, Düsseldorf und das gesamte Ruhrgebiet. Familien profitieren von einer gut ausgebauten Bildungslandschaft mit Kitas und Schulen in unmittelbarer Umgebung. Einkaufsmöglichkeiten für den täglichen Bedarf sowie gemütliche Cafés und Restaurants verleihen dem Viertel zusätzlichen Charme.
Naturfreunde und Sportbegeisterte kommen in den nahegelegenen Rheinauen, den ausgedehnten Waldgebieten oder im Naherholungsgebiet Sechs-Seen-Platte voll auf ihre Kosten. Ob Spaziergänge, Radtouren oder Freizeitaktivitäten – hier findet jeder die perfekte Balance zwischen Stadtleben und Naturgenuss.
Duisburg-Rahm ist somit der ideale Wohnort für alle, die eine harmonische Kombination aus Ruhe, Lebensqualität und urbaner Nähe suchen.
Sonstiges
Weitere interessante Angebote: WWW.KERSTING-IMMOBILIEN.DE
Sie möchten Ihre Immobilie jetzt oder später verkaufen bzw. vermieten? Dann nutzen Sie unsere über 36jährige Erfahrung in der Vermittlung von Immobilien!
Gerne bewerten wir kostenfrei auch Ihre Immobilie und erstellen Ihnen ganz unverbindlich ein individuelles Vermarktungskonzept.
Einfach anrufen, mailen oder ein Besuch in unserem Immobilienshop Uerdinger Str. 242 in Krefeld-Bockum. Wir sind gerne für Sie da!
Wir wurden 2024 erneut mehrfach ausgezeichnet:
BELLEVUE BEST PROPERTY AGENT 2024
IMMOBILIENSCOUT PREMIUMPARTNER 2024
FOCUS TOP IMMOBILIENMAKLER 2024
IMMOWELT BUSINESSPARTNER 2024
...und auch 2025 wieder:
BELLEVUE BEST PROPERTY AGENT 2025
IMMOBILIENSCOUT EXPERT 2025
FOCUS TOP IMMOBILIENMAKLER
IMMOWELT BUSINESSPARTNER
Energieausweis
- Ausweistyp: Verbrauch
- Verbrauchskennwert: 129.60 kWh/(m²*a)
- Endenergiebedarf: kWh/(m²*a)
- Gültig bis: 2028-03-12
- Befeuerungsart: Öl
- Baujahr der Heizanlage:
- Energiekennwert: D




















Sämtliche Angaben erhielten wir vom Eigentümer. Bitte haben Sie Verständnis dafür, dass wir jede Haftung für die Richtigkeit der Angaben vollständig ausschließen. Außerdem möchten wir darauf hinweisen, dass im Exposé enthaltenes Bildmaterial aufgrund von Fotobearbeitungsprogrammen oder Einsatz von künstlicher Intelligenz von der Realität abweichen kann.