KR-Nahe Stadtwald! Lichtdurchflutete 2 Zimmer Wohnung mit Balkon und frisch saniertem Badezimmer!
Daten zur Immobilie
- Objekt-Nr.5374
- Ort47803 Krefeld
- ObjektartEtagenwohnung
- Zimmer2
- Wohnfläche53.38 m²
- KaltmieteErfolgreich vermarktet!
- Heiz-/Nebenkosten-
Objektbeschreibung
Wir bieten Ihnen hier eine Miet-Immobilie mit guter Wohnraumgestaltung und schöner Sonnen-Loggia in bester Lage am Krefelder Stadtwald an!
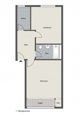
Mit rund 53m² guter Wohnfläche glänzt diese Wohnung mit einer gut aufgeteilten Grundrissgestaltung. Alle Räume sind hell mit großen Fenstern gestaltet, jedes Fenster ist mit Jalousien versehen.
In der Wohnung angekommen, empfängt Sie ein freundlicher Eingangsbereich, von welchem Sie in alle Räume der Wohnung gelangen. Das lichtdurchflutete Wohnzimmer rechter Hand punktet mit großen bodentiefen Fenster-Elementen - von hier aus gelangen Sie auf die große Loggia mit perfekter Westausrichtung und hübschem Ausblick auf die umliegende Nachbarschaft. Die Küche verfügt über eine gute Größe mit Ausblick in den Garten - die Küche ist übrigens im Mietpreis enthalten! Das schöne Schlafzimmer liegt ruhig nach hinten zur Gartenseite, ergänzt wird dieses interessante Mietangebot durch ein modernes Duschbad.
Informationen in Form von Grundrissen und der genauen Anschrift lassen wir Ihnen gerne auf schriftliche Anfrage zukommen. Fragen Sie uns gerne nach Details, es lohnt sich!
Ausstattung
- gute Grundrissgestaltung
- Lichtdurchflutete Räume
- modernes Bad
- schöner Loggia-Balkon
- teilw. bodentiefe Fenster
- Einbauküche ist im Mietpreis enthalten
- uvm.
Grundrisse
Lage
Begehrte Lage in unmittelbarer Nähe zum beliebten Krefelder Stadtwald.
Mietangebote in dieser Wohnlage sind eine absolute Seltenheit. Ein hoher Freizeitwert kennzeichnet diese perfekte Lage. Viele Einkaufsmöglichkeiten sind in kurzen Wegen zu erreichen, der Bus hält nur einige Meter entfernt.
Der Golfplatz in wenigen Fußminuten erreichbar, der Stadtwald-Biergarten liegt ganz nah. Tennisvereine, Joggingstrecken, Spazierwege: diese Lage erfüllt alle Wünsche!
Zudem punktet diese Wohnung mit einer hervorragenden Anbindung. Die Bushaltestelle vor der Tür oder die Autobahn in unmittelbarer Nähe sind nur wenige Beispiele...
Sonstiges
Weitere interessante Angebote: WWW.KERSTING-IMMOBILIEN.DE
Sie möchten Ihre Immobilie jetzt oder später verkaufen bzw. vermieten? Dann nutzen Sie unsere über 37jährige Erfahrung in der Vermittlung von Immobilien!
Gerne bewerten wir kostenfrei auch Ihre Immobilie und erstellen Ihnen ganz unverbindlich ein individuelles Vermarktungskonzept.
Einfach anrufen, mailen oder ein Besuch in unserem Immobilienshop Uerdinger Str. 242 in Krefeld-Bockum. Wir sind gerne für Sie da!
Wir wurden 2024 erneut mehrfach ausgezeichnet:
BELLEVUE BEST PROPERTY AGENT 2024
IMMOBILIENSCOUT PREMIUMPARTNER 2024
FOCUS TOP IMMOBILIENMAKLER 2024
IMMOWELT BUSINESSPARTNER 2024
...und auch 2025 wieder:
BELLEVUE BEST PROPERTY AGENT 2025
IMMOBILIENSCOUT EXPERT 2025
FOCUS TOP IMMOBILIENMAKLER
IMMOWELT BUSINESSPARTNER
Energieausweis
- Ausweistyp: Verbrauch
- Verbrauchskennwert: 186.30 kWh/(m²*a)
- Endenergiebedarf: kWh/(m²*a)
- Gültig bis: 2026-08-18
- Befeuerungsart: Gas
- Baujahr der Heizanlage:
- Energiekennwert: F







Sämtliche Angaben erhielten wir vom Eigentümer. Bitte haben Sie Verständnis dafür, dass wir jede Haftung für die Richtigkeit der Angaben vollständig ausschließen. Außerdem möchten wir darauf hinweisen, dass im Exposé enthaltenes Bildmaterial aufgrund von Fotobearbeitungsprogrammen oder Einsatz von künstlicher Intelligenz von der Realität abweichen kann.