Exklusives Design-Loft mit Hauscharakter in denkmalgeschützter Hofanlage am Rhein!
Daten zur Immobilie
- Objekt-Nr.5403
- Ort47229 Duisburg / Friemersh.
- ObjektartLoft, studio, atelier
- Baujahr2008
- Zimmer4
- Wohnfläche231.00 m²
- Kaufpreis 749.000,- €
Objektbeschreibung
Dieses außergewöhnliche Einfamilien-Loft befindet sich in einer ehemaligen, heute denkmalgeschützten Hofanlage in den idyllischen Friemersheimer Rheinauen. Die historische Bausubstanz wurde zwischen 2007 und 2010 nach WEG aufgeteilt und mit großer Sorgfalt und hohem Qualitätsanspruch umfassend saniert und auf ein modernes Wohnniveau gebracht. Im Jahr 2017 erfolgte zusätzlich der Ausbau des Dachgeschosses, wodurch ein besonders großzügiges und familiengerechtes Wohnkonzept entstand.
Heute präsentiert sich die Immobilie als beeindruckendes Einfamilien-Loft mit rund 231 m² Wohnfläche. Ein separater Hauseingang mit eigenem Treppenhaus führt direkt in den Wohnbereich und vermittelt vollständige Privatsphäre.
Der besondere Charakter des Objekts entsteht durch das gelungene Zusammenspiel aus historischer Architektur und moderner, funktionaler Gestaltung. Offener Grundriss und Deckenhöhen von bis zu sechs Metern unterstreichen den typischen Loftcharakter und schaffen ein außergewöhnliches Raumgefühl. Die konsequente Verwendung hochwertiger, aufeinander abgestimmter Materialien betont die Großzügigkeit und verleiht den Räumen eine elegante Wohnatmosphäre.
Im gesamten Wohnbereich einschließlich Galerie sowie angrenzendem Schlafzimmer wurde edles Eichenparkett in Landhausdielenoptik verlegt, geräuchert und geölt. Die Schlafräume im Dachgeschoss sind mit hochwertigem Teppichboden ausgestattet. In den Bädern sowie im Treppenhaus kommen moderne, großformatige Steinfliesen zum Einsatz. Die Wände sind glatt verputzt, im Dachgeschoss zusätzlich mit Malervlies versehen.
Alle Ver- und Entsorgungsleitungen wurden im Zuge der Sanierung erneuert. Durch umfassende energetische Maßnahmen erreicht das Objekt einen Effizienzstandard auf Neubau-Niveau. Die Beheizung erfolgt über eine moderne Wärmepumpe mit erdgekoppelter Energieversorgung und wassergeführter Fußbodenheizung. Ergänzt wird die Ausstattung durch funkbetriebene Dachflächenfenster, eine hochwertige Türkommunikationsanlage sowie eine Alarmanlage.
Ein besonderes Highlight stellt die rund 40 m² große Loggia dar, die als geschützter Außenbereich zusätzlichen Wohnkomfort bietet und sich über eine großflächige Falt-Schiebetür nahtlos in den Wohnraum integrieren lässt.
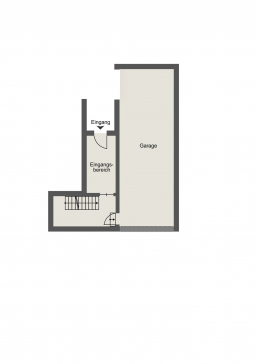
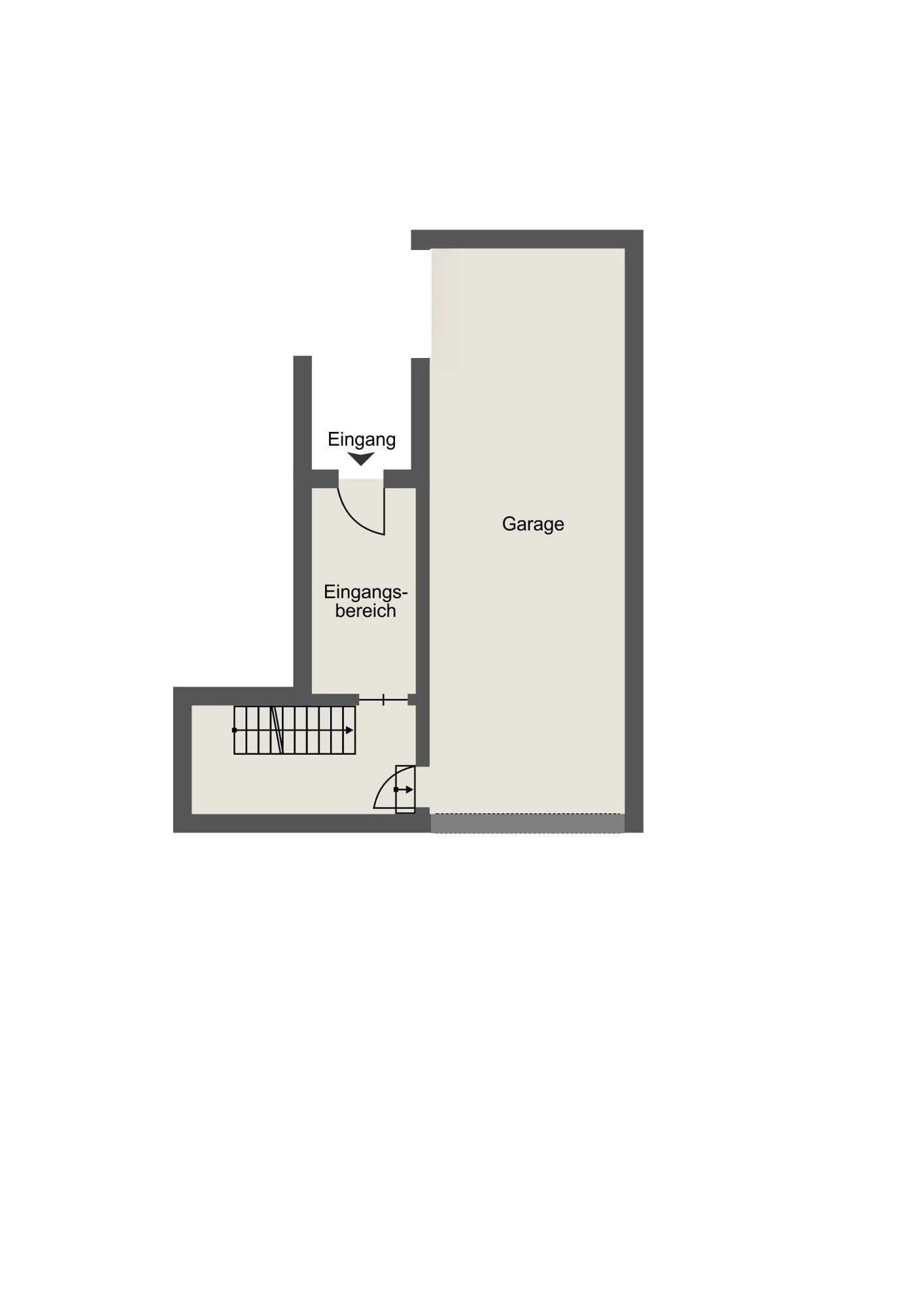
Im Erdgeschoss befinden sich der Eingangsbereich mit Diele und Treppenhaus sowie maßgefertigte Einbauschränke. Von hier aus besteht direkter Zugang zur großzügigen Garage. Das Obergeschoss bildet den zentralen Wohnbereich mit offenem Wohn- und Essbereich, Küche, Schlafzimmer mit Ankleide, Bad en Suite und Gäste-WC. Eine weitere Treppe führt auf die Galerie und in das Dachgeschoss mit zwei zusätzlichen Schlafzimmern und einem großzügigen Badezimmer mit Dusche und Badewanne.
Ein außergewöhnliches Wohnensemble für alle, die das Besondere suchen: historischer Charakter, moderne Technik und großzügige Loftarchitektur vereinen sich hier zu einem stilvollen Zuhause in idyllischer Wohnlage.
Ausstattung
- Denkmalgeschützte Hofanlage in den Friemersheimer Rheinauen
- Umfassende Sanierung der historischen Bausubstanz von 2007 bis 2010
- Umfangreiche energetische Sanierung mit Effizienzstandard auf Neubau-Niveau
- Ausbau des Dachgeschosses im Jahr 2017
- klimatisiertes Schlafund Kinderzimmer im Dachgeschoss
- Schlafzimmer mit Bad en Suite im Obergeschoss
- Separater Hauseingang mit eigenem Treppenhaus
- Lofttypischer, offener Grundriss
- Deckenhöhen von bis zu ca. 6 Metern
- Hochwertiges Eichenparkett in Landhausdielenoptik, geräuchert und geölt (Wohnbereich, Galerie, angrenzendes Schlafzimmer)
- Hochwertiger Teppichboden in den beiden Schlafräumen im Dachgeschoss
- Großformatige, moderne Steinfliesen in Bädern und im Treppenhaus
- Glatt verputzte Wände
- Erneuerte Verund Entsorgungsleitungen
- Moderne Wärmepumpe mit erdgekoppelter Energieversorgung
- Wassergeführte Fußbodenheizung in sämtlichen Wohnräumen
- Funkbetriebene Dachflächenfenster
- Hochwertige Türkommunikationsanlage
- Alarmanlage
- Ca. 40 m² große Loggia
- Großflächige Falt-Schiebetür zur Loggia
- Maßgefertigte Einbauschränke im Eingangsbereich
- Direkter Zugang zur großzügigen Garage vom Gebäude aus
- Offener Wohnund Essbereich
- Offene Küche inkl. hochwertiger Einbauküche
- Großzügiges Tageslicht-Bad mit Dusche und Badewanne im Dachgeschoss
- Gäste-WC
- Galerie
- uvm.!
Grundrisse
Lage
Die Hofanlage liegt im denkmalgeschützten historischen Ortskern von Friemersheim und grenzt direkt an das Landschaftsschutzgebiet der Rheinaue. Eingebettet in weitläufige Obstwiesen und Felder vereint diese besondere Lage naturnahe Ruhe mit dem Charme eines gewachsenen Dorfgefüges, einer sehr guten Infrastruktur sowie dem prägenden Einfluss der regionalen Industriekultur.
Friemersheim blickt auf eine über tausendjährige Geschichte zurück: Die einstigen Lehenshöfe der Abtei Werder entstanden bereits im 9. Jahrhundert. Noch heute spiegelt sich diese Historie im harmonischen Ortsbild mit Kirche, Pastorat, Schule, Gasthaus und großzügigen Hofanlagen wider.
Während die Industrialisierung des 19. Jahrhunderts den historischen Ortskern weitgehend unberührt ließ, entwickelte sich in direkter Nachbarschaft das moderne Friemersheim. Sämtliche Einrichtungen des täglichen Bedarfs – darunter Einkaufsmöglichkeiten, Schulen, Kindergärten, Ärzte, Gastronomie sowie der Stadtteilbahnhof – sind bequem fußläufig erreichbar. Ergänzend bietet das nahegelegene Krefeld ein umfangreiches Angebot an weiteren Einkaufs-, Bildungs- und Versorgungsmöglichkeiten.
Die Städte Düsseldorf, Krefeld und Moers sind sowohl mit dem Pkw als auch mit öffentlichen Verkehrsmitteln schnell und komfortabel zu erreichen.
Sonstiges
Weitere interessante Angebote: WWW.KERSTING-IMMOBILIEN.DE
Sie möchten Ihre Immobilie jetzt oder später verkaufen bzw. vermieten? Dann nutzen Sie unsere über 37jährige Erfahrung in der Vermittlung von Immobilien!
Gerne bewerten wir kostenfrei auch Ihre Immobilie und erstellen Ihnen ganz unverbindlich ein individuelles Vermarktungskonzept.
Einfach anrufen, mailen oder ein Besuch in unserem Immobilienshop Uerdinger Str. 242 in Krefeld-Bockum. Wir sind gerne für Sie da!
Wir wurden 2025 erneut mehrfach ausgezeichnet:
BELLEVUE BEST PROPERTY AGENT 2025
IMMOBILIENSCOUT PREMIUMPARTNER 2025
FOCUS TOP IMMOBILIENMAKLER 2025
...und auch 2026 wieder:
BELLEVUE BEST PROPERTY AGENT 2026
IMMOBILIENSCOUT Gold Partner 2026
FOCUS TOP IMMOBILIENMAKLER
Energieausweis
- Ausweistyp: Verbrauch
- Verbrauchskennwert: 27.66 kWh/(m²*a)
- Endenergiebedarf: kWh/(m²*a)
- Gültig bis: 2036-01-14
- Befeuerungsart: Erdwärme
- Baujahr der Heizanlage:
- Energiekennwert: A+























Der guten Ordnung halber möchten wir darauf aufmerksam machen, dass bei Abschluss eines notariellen Kaufvertrages, der durch unseren Nachweis und/oder Vermittlung zustande kommt, der Käufer an uns eine Maklerprovision in Höhe von 2,38% inkl. 19% MwSt. des Kaufpreises zu zahlen hat. Sämtliche Angaben erhielten wir vom Eigentümer. Bitte haben Sie Verständnis dafür, dass wir jede Haftung für die Richtigkeit der Angaben vollständig ausschließen. Außerdem möchten wir darauf hinweisen, dass im Exposé enthaltenes Bildmaterial aufgrund von Fotobearbeitungsprogrammen oder Einsatz von künstlicher Intelligenz von der Realität abweichen kann.