Krefeld-Oppum: Zeitloses 4-Zimmer-Reihenendhaus in schöner Hofanlage mit Garage und zwei Bädern!
Daten zur Immobilie
- Objekt-Nr.5372
- Ort47809 Krefeld
- ObjektartReihenendhaus
- Baujahr1997
- Grundstücksfläche197.00 m²
- Wohnfläche114.00 m²
- Kaufpreis 395.000,- €
Objektbeschreibung
Ein erstklassiges Reihenendhaus in sehr schöner Wohnlage, ab sofort bezugsfrei! Im Jahre 1997 in Massivbauweise gebaut, steht Ihnen ein familienfreundlicher, moderner Grundriss zur Verfügung.
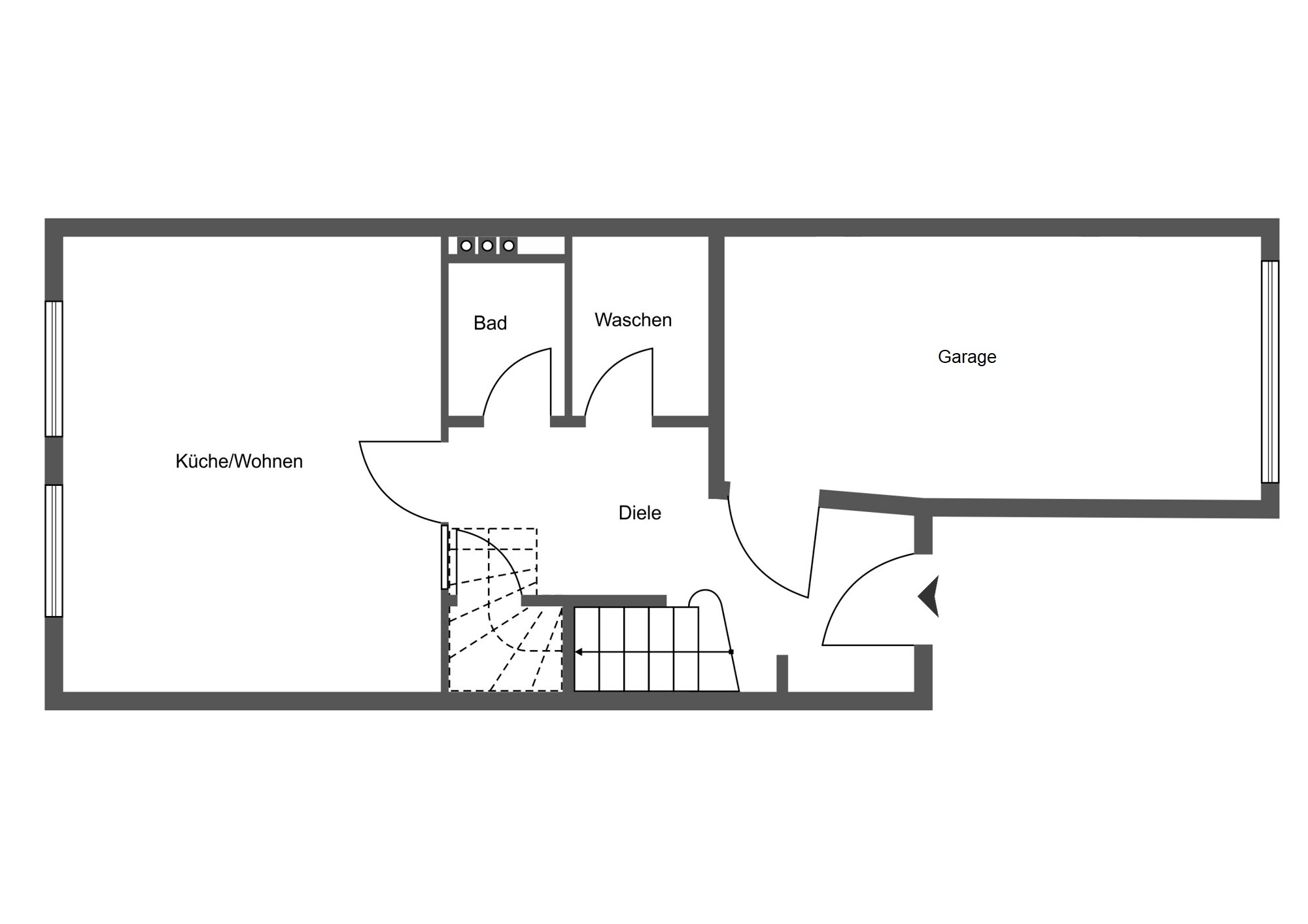
In sehr beliebter Wohnlage von Krefeld-Oppum befindet sich dieses attraktive Einfamilienhaus inmitten einer ausgesprochen netten und niveauvollen Nachbarschaft. Hereinspaziert: Es empfängt Sie ein offener Eingangsbereich, es geht vorbei an einem Gäste-WC und einem praktischen Hauswirtschaftsraum, und Sie gelangen in die geräumige Wohnküche mit Zugang zum gemütlichen Garten. Die große Terrasse ist dank moderner Glasüberdachung, wetterunabhängig nutzbar. Der ansprechende Süd-Ost-Garten hat die perfekte Größe und bietet Ihnen und Ihrer Familie einen herrlichen Urlaubsersatz für tolle Sommertage. Ein kleines Paradies in idealer Größe! Die Garage ist Bestandteil des Erdgeschosses und bietet durch direkten Zugang ins Haus bequemes Ein- und Ausladen bei Wind und Wetter.
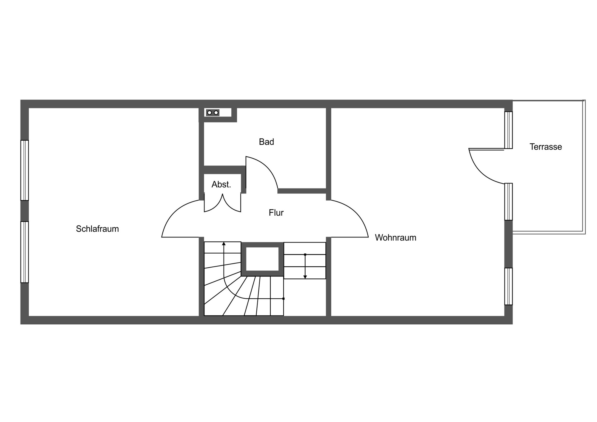
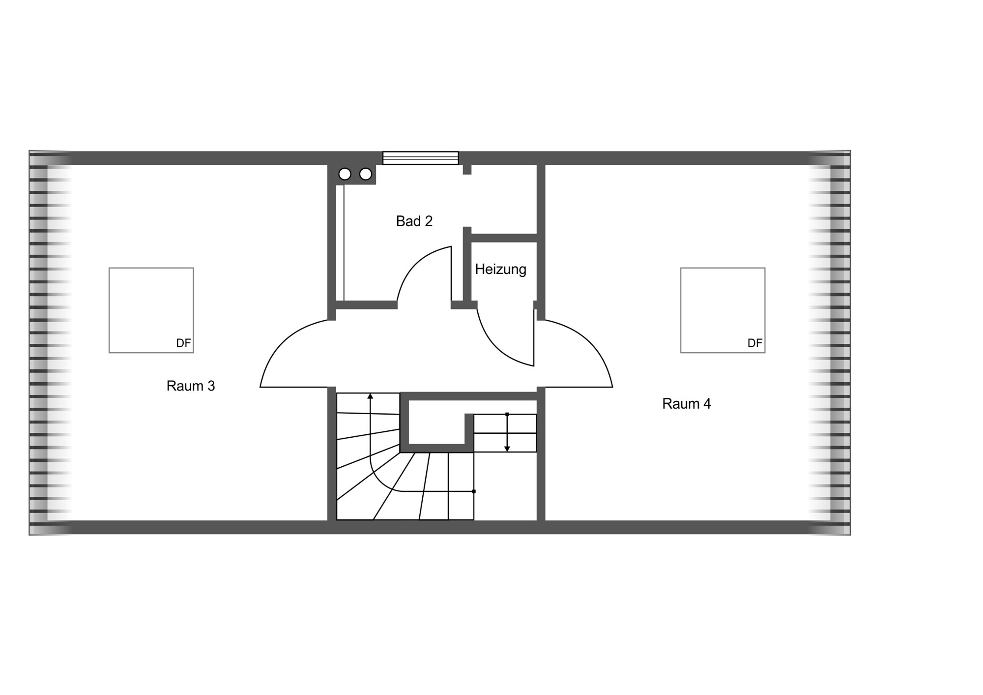
Im Obergeschoss befinden sich, dank der zwei Vollgeschosse, ebenfalls zwei geräumige Zimmer, wovon das eine zum Garten gelegen ist und sich perfekt als Schlafzimmer eignet. Das zweite Zimmer auf der anderen Seite der Etage stellt mit seinem Zugang zum Sonnenbalkon ein helles, lichtdurchflutetes Wohnzimmer dar. Ein klassisch weiß gehaltenes Badezimmer mit Badewanne rundet diese Etage ab. Über das helle Treppenhaus gelangen Sie in das großzügige Dachgeschoss, welches ebenfalls über zwei gleich große Zimmer guter Größe verfügt, beide einladend hell dank großer Dachflächenfenster. Ein zweites Bad, diesmal mit Dusche ausgestattet, ebenfalls klassisch weiß gefliest, rundet dieses interessante Immobilienangebot ab!
Insgesamt ein wahrlich schönes Haus jüngeren Baujahres: Gute Substanz und ruhige Lage bieten Ihnen und Ihrer Familie in der Zukunft ein tolles Zuhause! Koffer packen, einziehen, wohlfühlen!
Wir haben Ihr Interesse an unserem Immobilienangebot geweckt? Dann freuen wir uns auf Ihre Kontaktaufnahme.
Ausstattung
- schönes Einfamilien-Endhaus
- tolle Familienwohnlage mit hervorragender Infrastruktur
- isolierverglaste, bodentiefe Kunststoff-Fenster
- Rollläden an allen Fenstern
- zwei moderne, weiß geflieste Badezimmer
- insgesamt drei Schlafzimmer
- Hauswirtschaftsraum im Erdgeschoss
- Einzelgarage mit direktem Hauszugang
- Terrassenüberdachung
- insgesamt 5 Zimmer
- nicht unterkellert
- uvm.!
Grundrisse
Lage
Krefeld-Oppum, eine sehr gefragte Adresse bei Jung und Alt! Diese angenehme Wohnlage zeichnet sich besonders durch ihre hervorragende Zentralität und die direkte Nähe nach Düsseldorf und Meerbusch aus. Beste Verkehrsanbindungen ermöglichen Ihnen schnelle Wege in nahezu alle Richtungen. Der Düsseldorfer Flughafen ist in weniger als 15 Minuten gut erreichbar.
Rund um die Hauptstraße finden Sie eine nette, freundliche, mittelständische Nachbarschaft in naturnaher Lage. Hier gibt es noch echte nachbarschaftliche Freundschaften, die über viele Jahre gewachsen sind. In nächster Nähe finden Sie alle Einkaufsmöglichkeiten, der Ortsteil Oppum bietet eine gute Infrastruktur.
Nicht nur Düsseldorfer Berufspendler schätzen diese niveauvolle Wohnlage!
Sonstiges
Weitere interessante Angebote: WWW.KERSTING-IMMOBILIEN.DE
Sie möchten Ihre Immobilie jetzt oder später verkaufen bzw. vermieten? Dann nutzen Sie unsere über 37jährige Erfahrung in der Vermittlung von Immobilien!
Gerne bewerten wir kostenfrei auch Ihre Immobilie und erstellen Ihnen ganz unverbindlich ein individuelles Vermarktungskonzept.
Einfach anrufen, mailen oder ein Besuch in unserem Immobilienshop Uerdinger Str. 242 in Krefeld-Bockum. Wir sind gerne für Sie da!
Wir wurden 2025 erneut mehrfach ausgezeichnet:
BELLEVUE BEST PROPERTY AGENT 2025
IMMOBILIENSCOUT PREMIUMPARTNER 2025
FOCUS TOP IMMOBILIENMAKLER 2025
IMMOWELT BUSINESSPARTNER 2025
...und auch 2026 wieder:
BELLEVUE BEST PROPERTY AGENT 2026
IMMOBILIENSCOUT EXPERT 2026
FOCUS TOP IMMOBILIENMAKLER
Energieausweis
- Ausweistyp: Bedarf
- Verbrauchskennwert: kWh/(m²*a)
- Endenergiebedarf: 141.90 kWh/(m²*a)
- Gültig bis: 2035-11-13
- Befeuerungsart: Gas
- Baujahr der Heizanlage: 2009
- Energiekennwert: E





















Der guten Ordnung halber möchten wir darauf aufmerksam machen, dass bei Abschluss eines notariellen Kaufvertrages, der durch unseren Nachweis und/oder Vermittlung zustande kommt, der Käufer an uns eine Maklerprovision in Höhe von 3,57% inkl. 19% MwSt. des Kaufpreises zu zahlen hat. Sämtliche Angaben erhielten wir vom Eigentümer. Bitte haben Sie Verständnis dafür, dass wir jede Haftung für die Richtigkeit der Angaben vollständig ausschließen. Außerdem möchten wir darauf hinweisen, dass im Exposé enthaltenes Bildmaterial aufgrund von Fotobearbeitungsprogrammen oder Einsatz von künstlicher Intelligenz von der Realität abweichen kann.