Nahe Meerbusch: Bezugsfertiges & energieeffizientes Traumhaus (A+) mit viel Licht & schönem Garten
Daten zur Immobilie
- Objekt-Nr.5396
- Ort47809 Krefeld / Oppum
- ObjektartEinfamilienhaus
- Baujahr2012
- Grundstücksfläche535.00 m²
- Wohnfläche166.00 m²
- Kaufpreis 879.000,- €
Objektbeschreibung
Das im Jahr 2012 errichtete, freistehende Einfamilienhaus präsentiert sich als hochwertiges, äußerst energieeffizientes und bezugsfertiges Zuhause mit moderner Architektur und durchdachtem Wohnkonzept.
Auf einer Wohnfläche von ca. 166m² bietet die Immobilie ideale Voraussetzungen für Familien mit gehobenen Ansprüchen an Komfort, Design und Nachhaltigkeit. Großzügige Fensterflächen durchfluten alle Räume mit Tageslicht und schaffen eine helle, freundliche Wohnatmosphäre. Ein architektonisches Highlight bildet das offen gestaltete Treppenhaus mit Galerie sowie einer großflächigen Fensterfront über zwei Etagen, das dem Haus zusätzliche Weite verleiht.
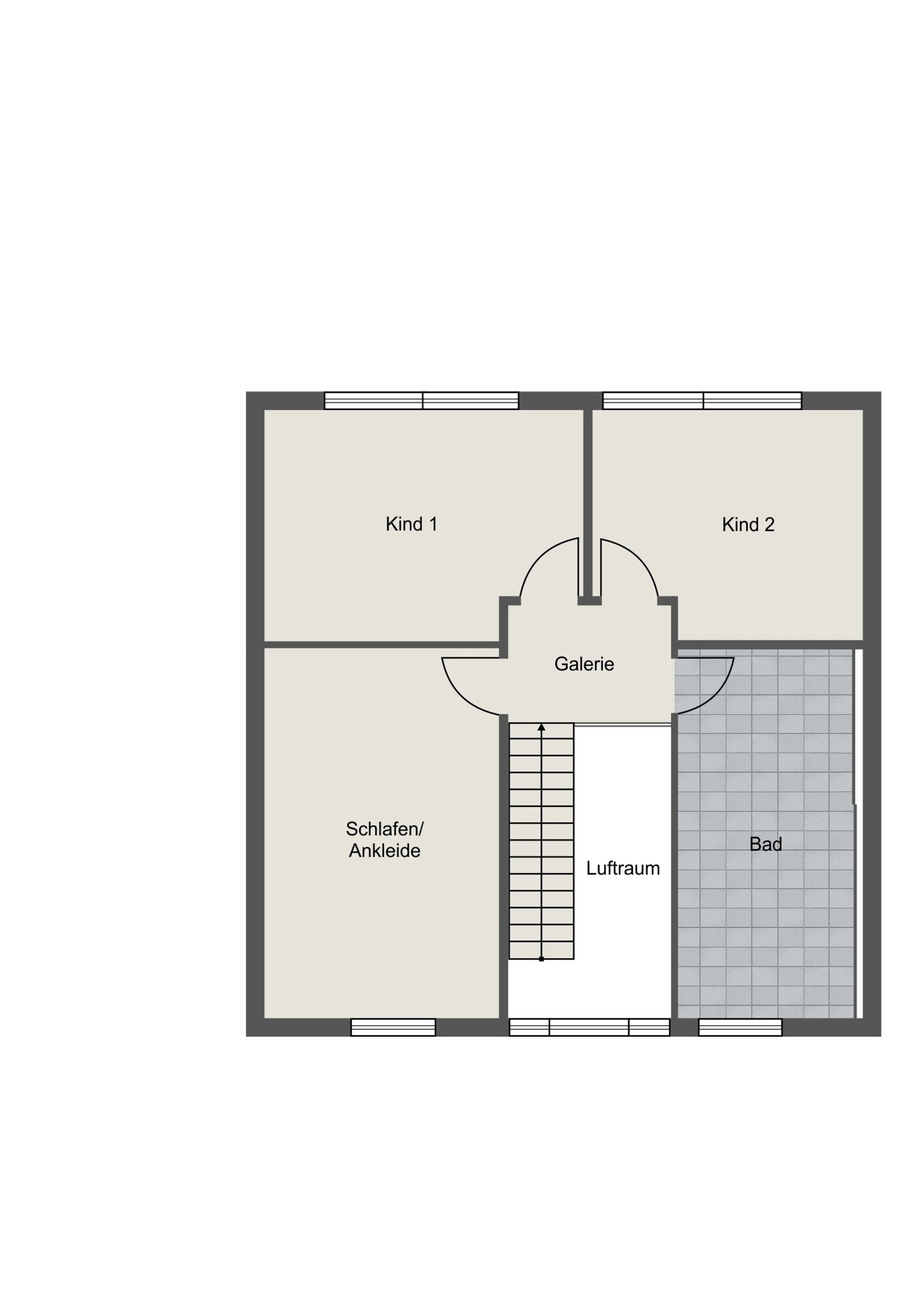
Das Raumangebot im Obergeschoss umfasst insgesamt drei Schlafzimmer sowie ein großzügiges Wellness-Badezimmer mit großer bodentiefer Dusche, Badewanne und Doppelwaschtisch. In den Wohn- und Schlafräumen unterstreicht edles Echtholzparkett den stilvollen Charakter des Hauses. Das Erdgeschoss punktet durch sein Splitlevel, den wunderschönen Wohn- und Essbereich mit bodentiefen Fensterelementen sowie der offen gestalteten Küche. Die hochwertig und zeitlos gestaltete Einbauküche ist bereits im Kaufpreis enthalten.
Der Außenbereich überzeugt mit einem schön angelegten und top gepflegten Garten und einer hochwertigen Terrasse in Südausrichtung, die ideale Bedingungen für entspannte Stunden im Freien bietet. Die Terrasse ist mit exklusiven Verschattung-Optionen und LED Beleuchtung ausgestattet.
Abgerundet wird das Gesamtangebot durch eine Erdwärme-Heizung und die vorhandene Photovoltaik-Anlage, die für eine besonders energieeffiziente und zukunftsorientierte Nutzung sorgen. Die Heizungsanlage befindet sich in einem großzügigen Hauswirtschaftsraum im Erdgeschoss, der ausreichend Platz für Waschmaschine, Trockner und weitere Haushaltsutensilien bietet und zudem hübsch hergerichtet ist. Weitere Lager- und Staufläche finden Sie im Spitzboden, der sich über die gesamte Hausfläche erstreckt und eine gute Stehhöhe aufweist. Ein Ausbau wäre hier durchaus denkbar. Eine Einzelgarage in Überlänge ist selbstverständlich auch vorhanden.
Insgesamt handelt es sich um ein zeitloses, gepflegtes Einfamilienhaus, das modernes Wohnen, Energieeffizienz und eine hohe Lebensqualität in idealer Weise vereint. Schauen Sie sich gerne die Ausstattungsliste an - es lohnt sich!
Ausstattung
- modernes, bezugsfertiges Einfamilienhaus
- energieeffizient durch Erdwärmepumpe und Photovoltaik (A+)
- lichtdurchflutete Räume durch große Fensterelemente
- besonders attraktive Raumhöhen im Erdgeschoss
- offene Galerie im Eingangsbereich mit Glasgeländer
- drei Schlafzimmer guter Größen
- großes Familienbad mit Dusche, Wanne und Doppelwaschtisch
- separates Gäste-WC im Erdgeschoss
- Echtholzparkett in Wohnund Schlafräumen
- hochwertige, zeitlose Einbauküche
- elektrische Rollläden an allen Fenstern
- hochwertig angelegte Terrasse mit Überdachung
- automatische Rasenbewässerung
- Brunnenpumpe
- Bayerwald Haustür mit Fingerprint
- Einzelgarage mit elektrischem Sektionaltor
- Hauswirtschaftsraum inkl. Technik im Erdgeschoss
- Lagerfläche und Stauraum im Spitzboden (ausbaufähig)
- Erdwärmepumpe
- Photovoltaik-Anlage
- uvm.
Grundrisse
Lage
Krefeld-Oppum, eine sehr gefragte Adresse bei Jung und Alt! Diese angenehme Wohnlage zeichnet sich besonders durch ihre hervorragende Zentralität und die direkte Nähe nach Düsseldorf und Meerbusch aus. Beste Verkehrsanbindungen ermöglichen Ihnen schnelle Wege in nahezu alle Richtungen. Der Düsseldorfer Flughafen ist in weniger als 15 Minuten gut erreichbar.
Rund um die Hauptstraße finden Sie eine nette, freundliche, mittelständische Nachbarschaft in naturnaher Lage. Hier gibt es noch echte nachbarschaftliche Freundschaften, die über viele Jahre gewachsen sind. In nächster Nähe finden Sie alle Einkaufsmöglichkeiten, der Ortsteil Oppum bietet eine gute Infrastruktur.
Nicht nur Düsseldorfer Berufspendler schätzen diese niveauvolle Wohnlage!
Sonstiges
Weitere interessante Angebote: WWW.KERSTING-IMMOBILIEN.DE
Sie möchten Ihre Immobilie jetzt oder später verkaufen bzw. vermieten? Dann nutzen Sie unsere über 37jährige Erfahrung in der Vermittlung von Immobilien!
Gerne bewerten wir kostenfrei auch Ihre Immobilie und erstellen Ihnen ganz unverbindlich ein individuelles Vermarktungskonzept.
Einfach anrufen, mailen oder ein Besuch in unserem Immobilienshop Uerdinger Str. 242 in Krefeld-Bockum. Wir sind gerne für Sie da!
Wir wurden 2025 erneut mehrfach ausgezeichnet:
BELLEVUE BEST PROPERTY AGENT 2025
IMMOBILIENSCOUT PREMIUMPARTNER 2025
FOCUS TOP IMMOBILIENMAKLER 2025
...und auch 2026 wieder:
BELLEVUE BEST PROPERTY AGENT 2026
IMMOBILIENSCOUT Gold Partner 2026
FOCUS TOP IMMOBILIENMAKLER
Energieausweis
- Ausweistyp: Verbrauch
- Verbrauchskennwert: 22.22 kWh/(m²*a)
- Endenergiebedarf: kWh/(m²*a)
- Gültig bis: 2026-01-25
- Befeuerungsart: Erdwärme
- Baujahr der Heizanlage:
- Energiekennwert: A+


























Der guten Ordnung halber möchten wir darauf aufmerksam machen, dass bei Abschluss eines notariellen Kaufvertrages, der durch unseren Nachweis und/oder Vermittlung zustande kommt, der Käufer an uns eine Maklerprovision in Höhe von 2,975 % inkl. 19% MwSt. des Kaufpreises zu zahlen hat. Sämtliche Angaben erhielten wir vom Eigentümer. Bitte haben Sie Verständnis dafür, dass wir jede Haftung für die Richtigkeit der Angaben vollständig ausschließen. Außerdem möchten wir darauf hinweisen, dass im Exposé enthaltenes Bildmaterial aufgrund von Fotobearbeitungsprogrammen oder Einsatz von künstlicher Intelligenz von der Realität abweichen kann.