Krefeld-Bockum: Charmant modernisiertes Backstein-Stadthaus in familienfreundlicher Lage!
Daten zur Immobilie
- Objekt-Nr.5405
- Ort47800 Krefeld / Bockum
- ObjektartStadthaus
- Baujahr1908
- Grundstücksfläche241.00 m²
- Wohnfläche184.25 m²
- Kaufpreis 498.000,- €
Objektbeschreibung
Dieses höchst charmante Altbau-Stadthaus befindet sich in begehrter, ruhiger Wohnlage von Krefeld - Bockum, fußläufig zum Bockumer Platz gelegen.
Im Jahr 1908 in massiver Bauweise mit charakteristischer Backsteinfassade errichtet, wurde die Immobilie in den Jahren 2015 bis 2022 umfangreich modernisiert. Mit einer Wohnfläche von ca. 150m² erwartet Sie hier ein echtes Raumwunder: Besonders das Zusammenspiel von altbautypischen Stilemelementen und der modernen Ausstattung wird Sie begeistern!
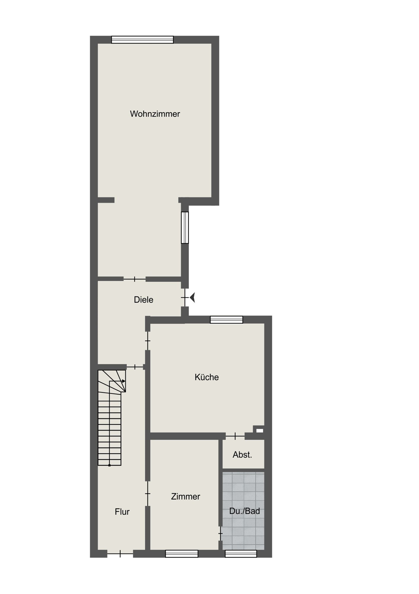
Im Erdgeschoss empfängt Sie ein für das Baujahr klassischer Eingangsbereich mit originaler Holztreppe und einem langgezogenen Flur. Ein geräumiges Durchgangszimmer, das derzeit als Garderobe genutzt wird, grenzt an das moderne Badezimmer mit grauen, großformatigen Fliesen, bodentiefer Dusche und einem Fenster zur Straße.
Zur Gartenseite hin befindet sich eine großzügige Wohnküche mit zeitloser Einbauküche und ausreichend Platz für einen großen Familienesstisch. Und damit nicht genug: Im Jahr 1967 errichteten Anbau erwartet Sie ein lichtdurchflutetes Wohnzimmer mit bodentiefen Fenstern, direktem Zugang zur großen Sonnenterrasse und in den gemütlichen Stadtgarten. Ein Kaminofen sorgt hier zusätzlich für eine behagliche Atmosphäre – sicherlich Ihr neuer Lieblingsort.
Über das originale Holztreppenhaus gelangen Sie in das 1. Obergeschoss. Mit drei Schlafzimmern bietet diese Etage ausreichend Platz für die ganze Familie. Im Anbau besteht zudem die Möglichkeit, ein zweites Badezimmer zu realisieren – die Rohinstallationen sind hierfür bereits vorhanden. Nun liegt es an Ihnen, die Gestaltung ganz nach Ihren eigenen Vorstellungen umzusetzen.
Über dem Wohnzimmer befindet sich im 1. Obergeschoss außerdem eine großzügige Nutzfläche, die sich wahlweise als Stauraum oder beispielsweise als Spielzimmer nutzen lässt. Alternativ besteht die Option, die Zwischendecke zu entfernen und das Wohnzimmer bis in den Giebel zu öffnen, um eine besonders beeindruckende und offene Wohnatmosphäre zu schaffen.
Im Dachgeschoss stehen Ihnen zwei weitere großzügige Zimmer sowie ein Tageslichtbad zur Verfügung. Hinweis für Sie: In diesem Badezimmer kam es in der Vergangenheit leider zu einem Wasserschaden, weshalb das Bad noch vollständig saniert wird. Der daraus entstehende Vorteil für Sie: Bei der Wiederherstellung des Badezimmers kann der Verkäufer noch Ihre persönlichen Vorstellungen berücksichtigen, sodass Sie ein neues Bad nach Ihren Wünschen mitgestalten können.
Teilunterkellert, verfügt das Haus über weitere Neben- und Nutzflächen. Ebenfalls erwähnenswert ist der Stellplatz für ein Auto im Hinterhof, ein weiterer Zutritt ins Haus ist durch eine Seiteneingangstür gegeben.
Insgesamt präsentiert sich dieses Einfamilien-Stadthaus als ein einladendes Zuhause mit viel Charme. Die Kombination aus charakteristischen Altbau-Elementen und moderner Ausstattung macht dieses Immobilienangebot zu einem ganz Besonderen.
Wir haben Ihr Interesse geweckt? Kontaktieren Sie uns gerne!
Ausstattung
- ruhige Wohnlage in Krefeld Bockum
- 4-5 Schlafzimmer
- größtenteils neue Holzfenster in 2018
- neue Haustüre und Seiteneingangstür aus Holz in 2018
- moderne, zeitlos weiße Einbauküche
- Dachgauben in 2022 erneuert
- aufwendig saniertes Badezimmer im Erdgeschoss in 2015
- uvm.!
Grundrisse
Lage
Beste Wohnlage mitten in Krefeld-Bockum! Eine der gefragtesten Wohnlagen Krefelds...
Die zahlreichen Grünanlagen die Nähe zum beliebten Stadtwald sowie die gute Infrastruktur sind nur wenige Vorteile dieser lebenswerten Lage. Alle Geschäfte des täglichen Bedarfs sowie die Anbindung an die öffentlichen Verkehrsmittel sind in kurzen Wegen zu erreichen. Zahlreiche Kindergärten, weiterführende Schulen, Banken und Bäcker befinden sich ebenfalls in der Nähe.
Ein umfangreiches Angebot an Freizeitmöglichkeiten rundet diese Wohnlage ab. Das Badezentrum, Golfplätze, Tennisclubs sowie der Hockeyplatz befinden sich in der unmittelbaren Umgebung.
Alle umliegenden Autobahnen, z.B. in Richtung Düsseldorf oder das Ruhrgebiet, sind in wenigen Minuten erreicht.
Sonstiges
Weitere interessante Angebote: WWW.KERSTING-IMMOBILIEN.DE
Sie möchten Ihre Immobilie jetzt oder später verkaufen bzw. vermieten? Dann nutzen Sie unsere über 37jährige Erfahrung in der Vermittlung von Immobilien!
Gerne bewerten wir kostenfrei auch Ihre Immobilie und erstellen Ihnen ganz unverbindlich ein individuelles Vermarktungskonzept.
Einfach anrufen, mailen oder ein Besuch in unserem Immobilienshop Uerdinger Str. 242 in Krefeld-Bockum. Wir sind gerne für Sie da!
Wir wurden 2025 erneut mehrfach ausgezeichnet:
BELLEVUE BEST PROPERTY AGENT 2025
IMMOBILIENSCOUT PREMIUMPARTNER 2025
FOCUS TOP IMMOBILIENMAKLER 2025
...und auch 2026 wieder:
BELLEVUE BEST PROPERTY AGENT 2026
IMMOBILIENSCOUT Gold Partner 2026
FOCUS TOP IMMOBILIENMAKLER
Energieausweis
- Ausweistyp: Bedarf
- Verbrauchskennwert: kWh/(m²*a)
- Endenergiebedarf: 354.50 kWh/(m²*a)
- Gültig bis: 2036-01-27
- Befeuerungsart: Gas
- Baujahr der Heizanlage:
- Energiekennwert: H





















Der guten Ordnung halber möchten wir darauf aufmerksam machen, dass bei Abschluss eines notariellen Kaufvertrages, der durch unseren Nachweis und/oder Vermittlung zustande kommt, der Käufer an uns eine Maklerprovision in Höhe von 3,57% inkl. 19% MwSt. des Kaufpreises zu zahlen hat. Sämtliche Angaben erhielten wir vom Eigentümer. Bitte haben Sie Verständnis dafür, dass wir jede Haftung für die Richtigkeit der Angaben vollständig ausschließen. Außerdem möchten wir darauf hinweisen, dass im Exposé enthaltenes Bildmaterial aufgrund von Fotobearbeitungsprogrammen oder Einsatz von künstlicher Intelligenz von der Realität abweichen kann.